Lot 102 Thunderbird Street , Ripley QLD
AMORY RIPLEY INVESTMENT. NEW HOUSE & LAND PACKAGE. FAST GROWING REGION OF SE QLD.
Welcome to the Ripley Valley, one of Australia’s fastest growing locations. Within walking distance of the expanding Ripley Town Centre where retail, health & education are connected with communities and the proposed future train station, Amory is at the centre of one of the largest growth areas in Australia. The Amory masterplan includes a central park and natural reserves. Serviced by major arterials including the Cunningham and Centenary Highways, with bus routes and the proposed rail network connecting Ripley to neighbouring Springfield and Ipswich and on to Brisbane.
This beautiful home comes with the option for the buyer to explore a long-term lease with Defence Housing Australia (DHA). While we're currently finalising details, this package includes the potential to commit to a DHA lease for up to 12 years, with an additional option of up to 3 years, which could be leased until 2042.
Rental Appraisal: $700 PW TBC
Potential DHA Lease: up to 12 years plus one option for an additional 3 years from completion date.
TURNKEY INCLUSIONS:
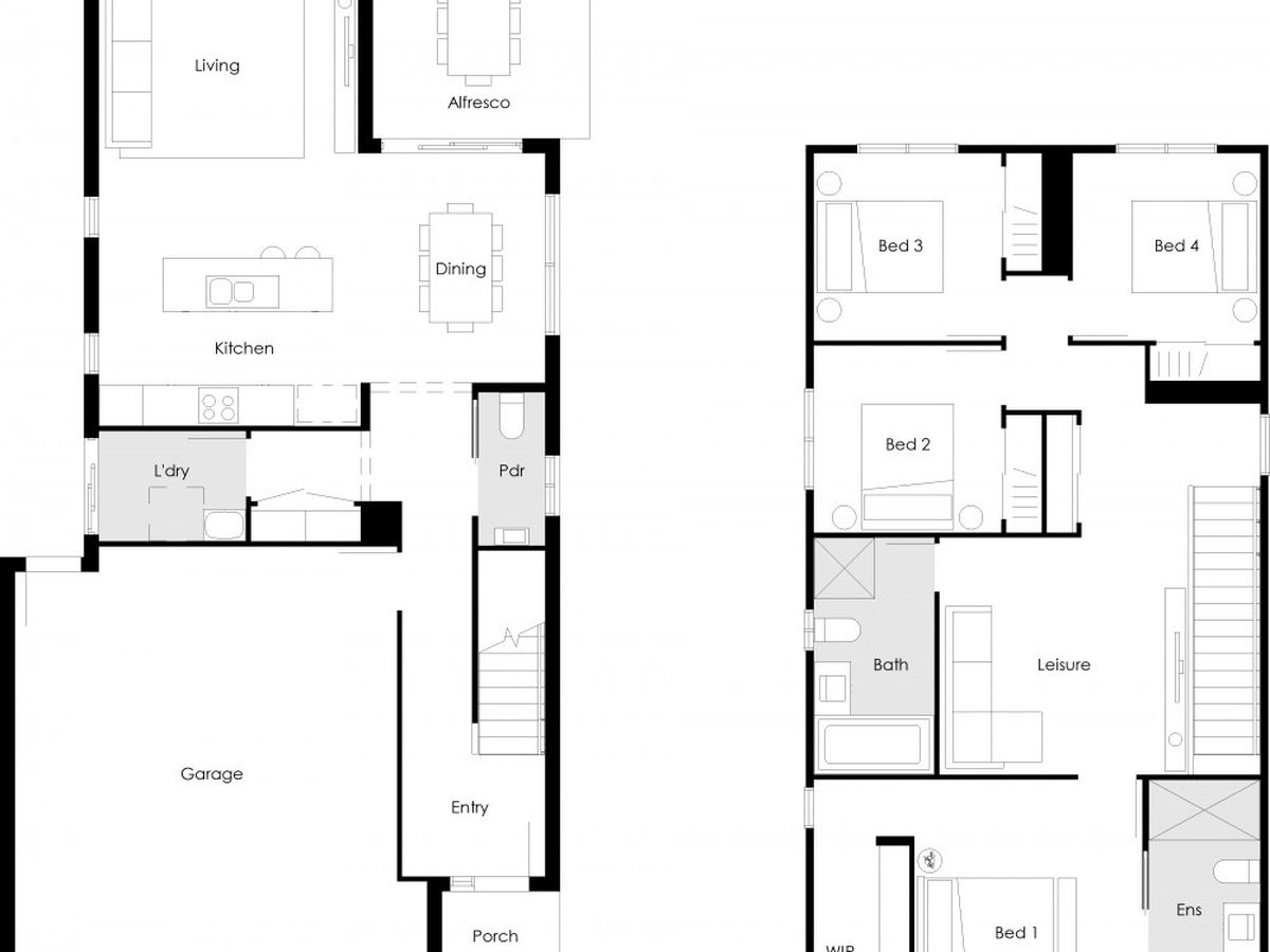
* 4 Bedrooms including Master with ensuite and walk in Robe
* Split System air conditioning
* 600m Stainless Steel Kitchen Appliances
* 20mm engineered low silica stone bench tops to kitchen
* Quality floor coverings inc Timber laminate flooring
* Covered alfresco entertaining area
* Remote control garage door
* Fully fenced rear yard and landscaped including driveway, letterbox and clothesline
* Block size of 300sqm
A DHA (Defence Housing Australia) lease offers the new owners amazing inclusions such as guaranteed rental income, a comprehensive property care/maintenance package, & annual independent professional rental valuations and adjustments, all of which are designed to offer buyers a stress free experience.
** While the potential benefits of a DHA lease are appealing, including guaranteed rental income and property maintenance services, please note that these options are contingent upon final paperwork and buyer commitment **
AN INVESTMENT WITH A SECURE, LONG-TERM TENANT – DEFENCE HOUSING AUSTRALIA
If you’re looking for an investment option with less stress – you can lease this property to DHA!
DHA has assessed this property location, plans and inclusions and has committed to a long-term lease on completion of construction, if delivered to the agreed specifications.
The benefits of leasing to DHA include:
• reliable rental income
• long-term leases up to 12 years
• rent paid in advance
• property care including most non-structural repairs
• For more visit www.dha.gov.au/investing/#investingbenefits
DHA is not the vendor of the property and therefore makes no representation in relation to the land, the builder, the construction of the property or any other matter unrelated to the DHA Lease Agreement or Property Care Contract. Investment in a DHA property is subject to the terms of the DHA Lease or other contractual documentation and those terms take precedence over any information contained in this advertising material.
Investors should always seek appropriate independent advice before making any investment decisions with DHA.
Information provided above has been obtained from various sources which we believe to be accurate, however, Hudson Property Agents accept no liability for any errors or omissions, including but not limited to a Floorplan, lease dates, build date, land size, floor plans and size, and property condition. Photos are for illustrative purposes only and have been provided by the builder and/or developer. Interested parties should make their own enquiries and conduct their own due diligence in addition to obtaining legal advice from their appointed solicitor or conveyancer.
Heating & Cooling
Outdoor Features
Indoor Features
Mortgage Calculator
$3,078
Estimated monthly repayments based on advertised price of $998900.
Property Price
Deposit
Loan Amount
Interest Rate (p.a)
Loan Terms




