14 Wando Court, Portland VIC
Wonderful Home In Wando
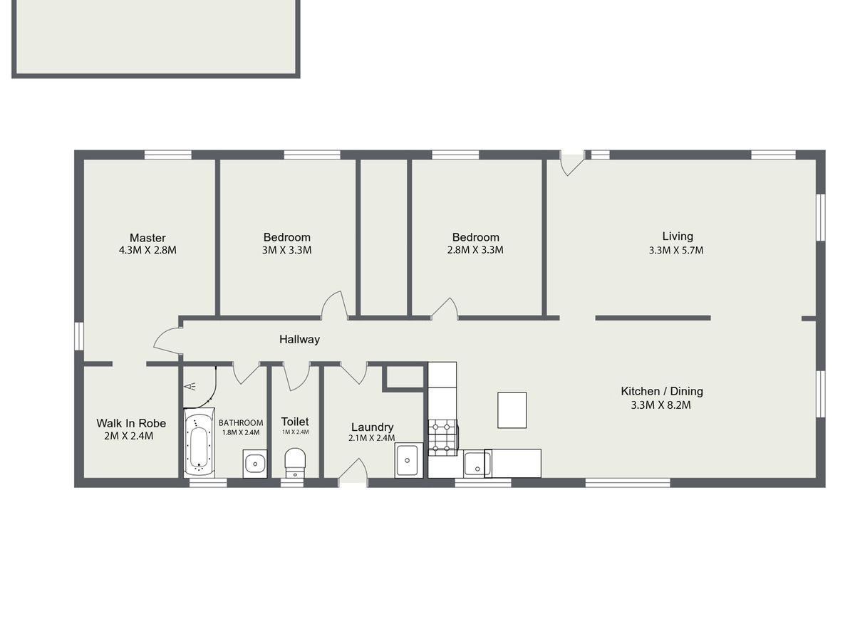
14 Wando Court is a beautifully presented 3 bedroom, 1 bathroom family home located in a quiet court.
With its modern design, spacious living areas, and ample parking space, this property offers the perfect combination of comfort and convenience for you and your loved ones.
The bedrooms are generously sized and feature new carpet & built-in robes with a walk in robe in the master plus reverse cycle.
The well-appointed bathroom is tastefully designed and includes a luxurious bathtub for you to unwind after a long day plus there is the convenience of a separate toilet.
Outside the property boasts a spacious backyard providing the perfect space for children to play or for you to indulge in some gardening.
The large garage with space for up to 4 cars offers ample room for all the car, the van and the toys!
A beautiful home just ready for a young family o enjoy.
Heating & Cooling
Outdoor Features
Indoor Features
Mortgage Calculator
$3,078
Estimated monthly repayments based on advertised price of $410000.
Property Price
Deposit
Loan Amount
Interest Rate (p.a)
Loan Terms


