Alexandria NSW
WELL LOCATED, SPACIOUS TERRACE WITH PARKING
Situated within easy driving distance to: Sydney Airport, Westfield Eastgardens, UNSW Centennial Park, local schools and shops this 4 bedroom, two storey, terrace comes with guaranteed income until November 2025.
Currently leased to Defence Housing Australia (DHA) for $1400 pw with a quality tenant and hassle- free management; this is an opportunity to purchase a wonderful property in a great location.
PROPERTY FEATURES:
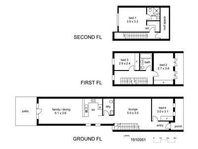
4 bedrooms all with built ins, main with ensuite , WIR and separate air conditioning
2 bathrooms- main with separate toilet, bath and shower
Modern kitchen with gas top cooking, electric oven, rangehood, dishwasher (stainless steel appliances)
Separate, spacious lounge room
Family/dining
Laundry with 3rd toilet and clothes dryer
Air conditioning
Courtyard/ open car space with access from rear lane(Lawrence Lane)
Roof storage space
Reliable NBN Fibre to the Node and 5G mobile coverage
Built: Circa 2000
Land Size: 154sqm
Outgoings(approx.)
Water: $190.77pq
Council: $452.50pq
Land tax: $2953.33pa
DHA service fee (management & maintenance): $1,004.44 per month ( only payable whilst the property is leased to DHA)
DISTANCE TO AMENITIES & SERVICES (approx):
St Peters Train Station: 1.1km ( 4 min drive, 16 min walk)
Erskineville Train Station:1.1km ( 4 min drive, 16 min walk)
Woolies Metro Erskineville:1.5km (5min drive)
Sydney Park:450m (6min walk)
Erskineville Public School: 1.1km ( 4 min drive, 16 min walk)
Alexandria Park Community School:1.2km (17min walk, 11min bus, 6min drive)
Sydney Domestic Airport: 5km (12 min drive)
University of NSW: 5.1km ( 14 min drive)
Royal Randwick Racecourse: 4.6km (14min)
Centennial Park ( Sydney Cricket Ground):4.9km (15mindrive)
Westfield Eastgardens: 8.3km ( 15 min drive)
LEASE DETAILS:
Current weekly rent: $1,400
Lease Start Date: 17 Nov 2022
Lease End Date: 16 Nov 2025
Option available: Used
Right to Vary available: 1 x up to 12 months Reduction or Extension (refer to the DHA Lease Agreement)
All options and variations are exercised at DHA's discretion
This property is for sale on behalf of a Defence Housing Australia lessor and has a Defence Housing Australia lease in place. Visit dha.gov.au to learn the benefits of investing in Defence Housing Australia property.
Photos are supplied under agreement by DHA and are for illustration purposes only.
In accordance with DHA regulations, we advise that this property will only be available for private inspections and to pre-qualified buyers.
Heating & Cooling
Outdoor Features
Indoor Features
Other Features
Clothes Dryer
Dishwasher
Mortgage Calculator
$3,078
Estimated monthly repayments based on advertised price of $2150000.
Property Price
Deposit
Loan Amount
Interest Rate (p.a)
Loan Terms


