16 Horatio Court, Portland VIC
For Rent -16 Horatio Court
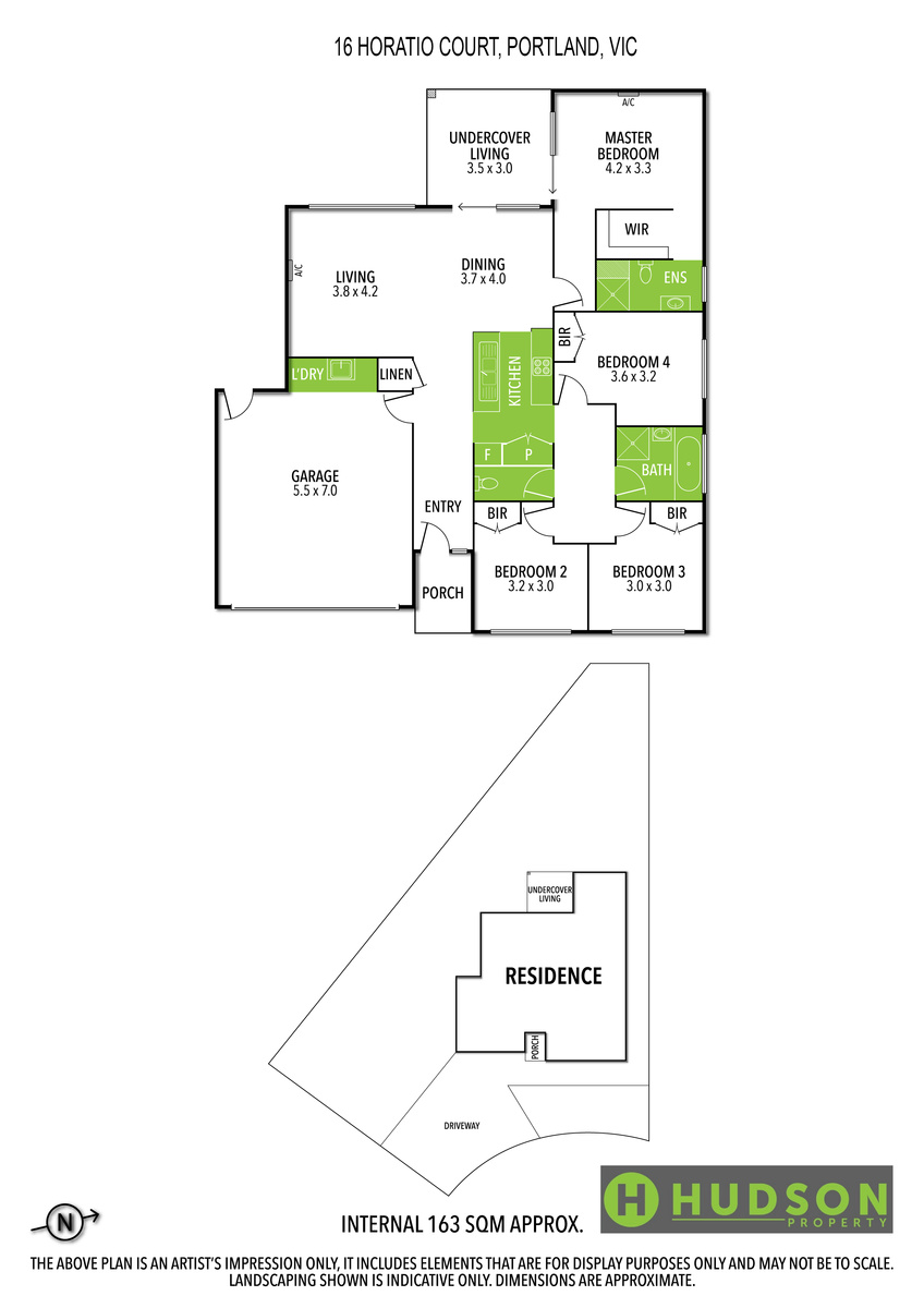
This home offers space, comfort and practicality and is only a short drive to town and schools.
Inside the home features four spacious bedrooms including the king plus size master with a reverse cycle, walk in robe and roomy ensuite.
The remaining three bedrooms all have built in robes and are located close to the modern bathroom.
The heart of the home is the open-plan kitchen, dining and living area - the kitchen offers ample bench space and modern appliances and flows into the light-filled dining and lounge. Gas central heating ensures the home stays cosy all winter long.
Outside, the expansive backyard has plenty of room for children to play.
A double garage with remote access and driveway parking completes this property.
