10 Hakea Court, Portland VIC
Homely In Hakea
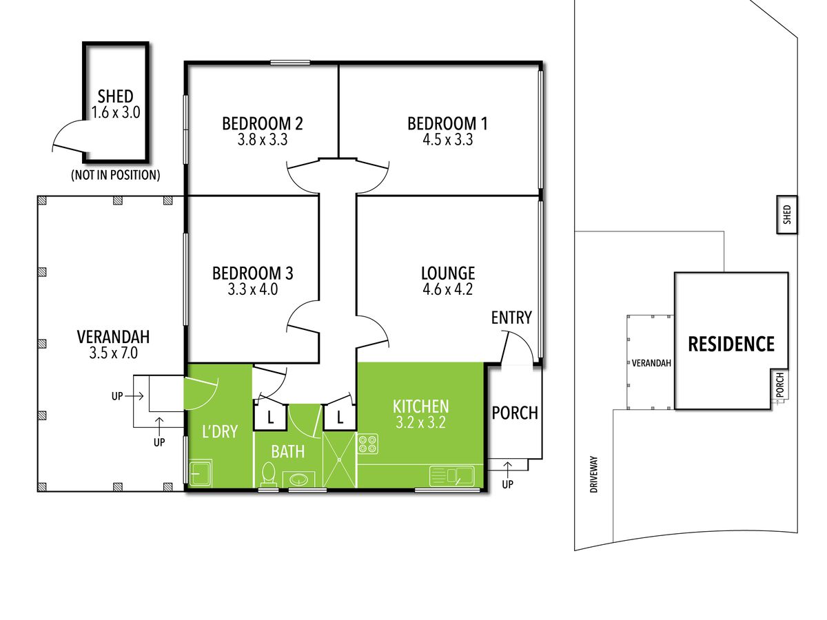
Situated in a quiet court, close to schools, daycares and playground, this homely 3 bedroom, 1 bathroom home is the perfect opportunity for first home buyers, investors or those looking to downsize.
Sitting solidly on concrete stumps, the current owners have updated the kitchen and the bathroom and have taken the time to tidy inside and out. Near new fencing and side gate surround the property and with access to the huge backyard, there is ample space for the new shed (STCA).
Entering the home you'll find a bright and open lounge/kitchen/dining area with gas heating and a split system.
All 3 bedrooms in the home are well proportioned with the main being a king plus in size.
The well-maintained backyard provides a secure space for the kids to play and the beloved pets to run while you sit back and enjoy a cuppa under the large undercover area.
Contact us today to arrange a viewing and secure your first home or investment.
Heating & Cooling
Outdoor Features
Mortgage Calculator
$3,078
Estimated monthly repayments based on advertised price of $415000.
Property Price
Deposit
Loan Amount
Interest Rate (p.a)
Loan Terms



