27 Kentbruck Road, Heywood VIC
Heywood Beauty - Old + New Mastered
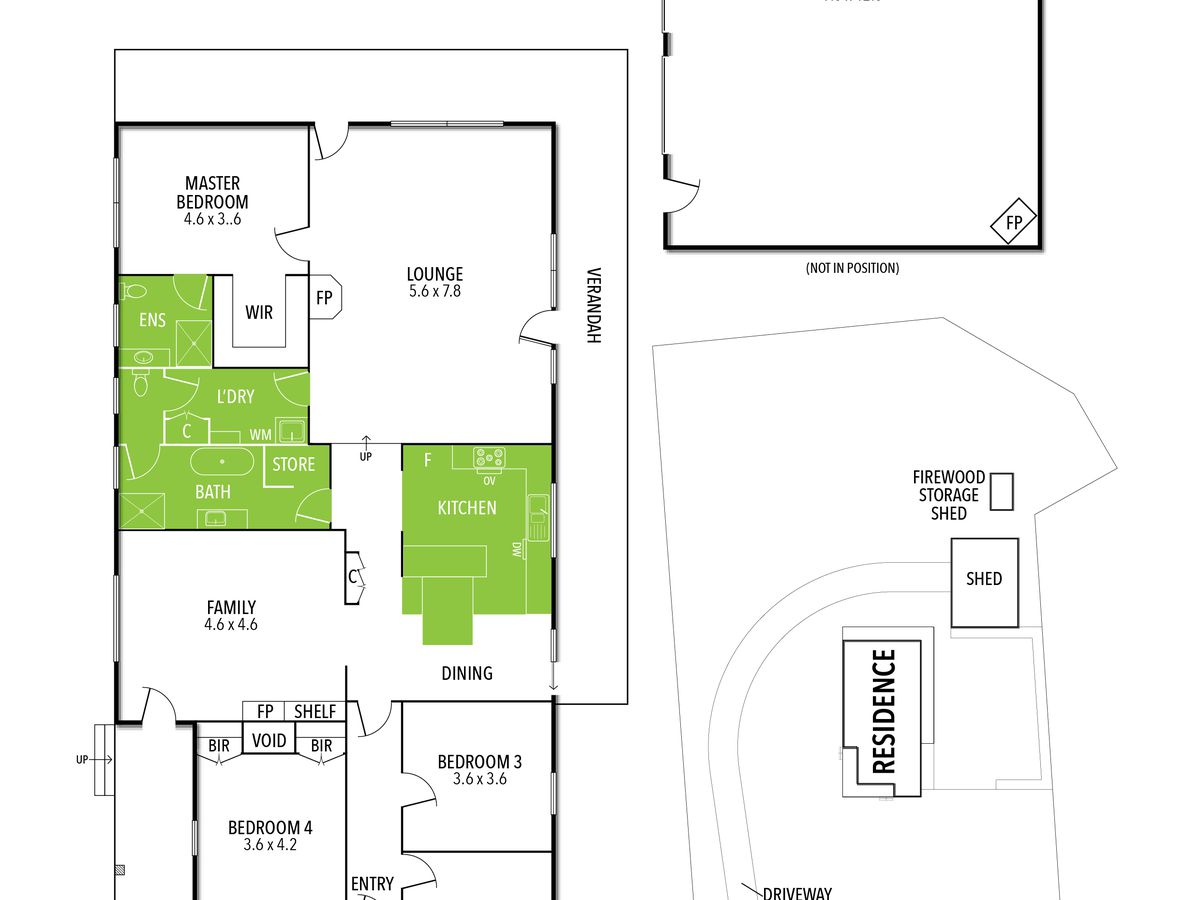
Circa 1905, this stunning and picturesque 4 bedroom, 2 bathroom, 3 living home is set on an expansive 5,613m² (approximately 1.39 acres) of land, offering a perfect blend of charm, space, and convenience.
Within walking distance to both the local primary and high schools, this beautifully maintained home, which blends the old with the new masterfully, makes it an excellent choice for families.
Boasting features that superbly showcase the era of the home, you will find pressed tin ceilings - with each room boldly showing different designs nd colours, high ceilings, picture rails - and even the original front door.
In 2018, the current owners updated the kitchen, put new blinds, carpet and flooring throughout, rendered the outside, resulting in a very stunning finish and repainted the interior. Both bathrooms were also updated around 15 years ago. Add to this updated roofing front and book, and this old lady is move-in ready.
At the heart of the home and part of the original property, is the well-appointed and updated kitchen with classy grey granite benchtops, island bench and a built-in dining table, while still allowing for room for an additional casual dining space. Sliding glass doors open to the immaculate and low-maintenance side yard. Across the hall opens up into a spacious lounge with an original mantel and chimney. A perfect room to unwind by the fireplace and enjoy your favourite book or use as a rumpus room for the kids.
Completing the original part of the home are three massive bedrooms, front decking and original bullnose verandah with stunning ironwork.
The new is the massive and well-thought-out extension at the rear of the home, comprising of a living room, main bedroom, main bathroom and laundry.
The large living room is surrounded by colonial style windows and French doors that open to the side enclosed yard. There is ample room for another dining space if needed; otherwise, enjoy the space on offer, all kept warm in winter with the a wood heater.
Leading from this living space, you will find the master bedroom king in size with a walk in robe and ensuite.
Comfort is assured year-round with ducted heating to the front of the home, two reverse-cycle systems and 2 wood fires.
Also featured in this part of the home is the equipped laundry which connects to the main bathroom via a toilet. The bathroom is spacious with a bath and a shower, and of course, access to the 2 way toilet.
Outside, this property continues to shine. An undercover area with cafe blinds wraps its way around the rear and side of the home, combining the old with the new perfectly and allowing even more room to entertain or the family to enjoy.
A large 4-car garage with full power and electric roller doors is complemented by a 9m x 12m colorbond shed with a concrete floor, power and two doors with one remote.
Solar panels help keep power costs down, and if you look close enough you will even find the old petrol bowser.
This is a rare opportunity to secure a character-filled home on acreage, combining historic charm with modern upgrades — all in a highly convenient location.
Heating & Cooling
Outdoor Features
Indoor Features
Eco Friendly Features
Other Features
Ducted Wood Heater
Mortgage Calculator
$3,078
Estimated monthly repayments based on advertised price of $650000.
Property Price
Deposit
Loan Amount
Interest Rate (p.a)
Loan Terms





