38 Learmonth Street, Portland VIC
Quality Family Home On 2 Titles - Or One For The Savvy Investor
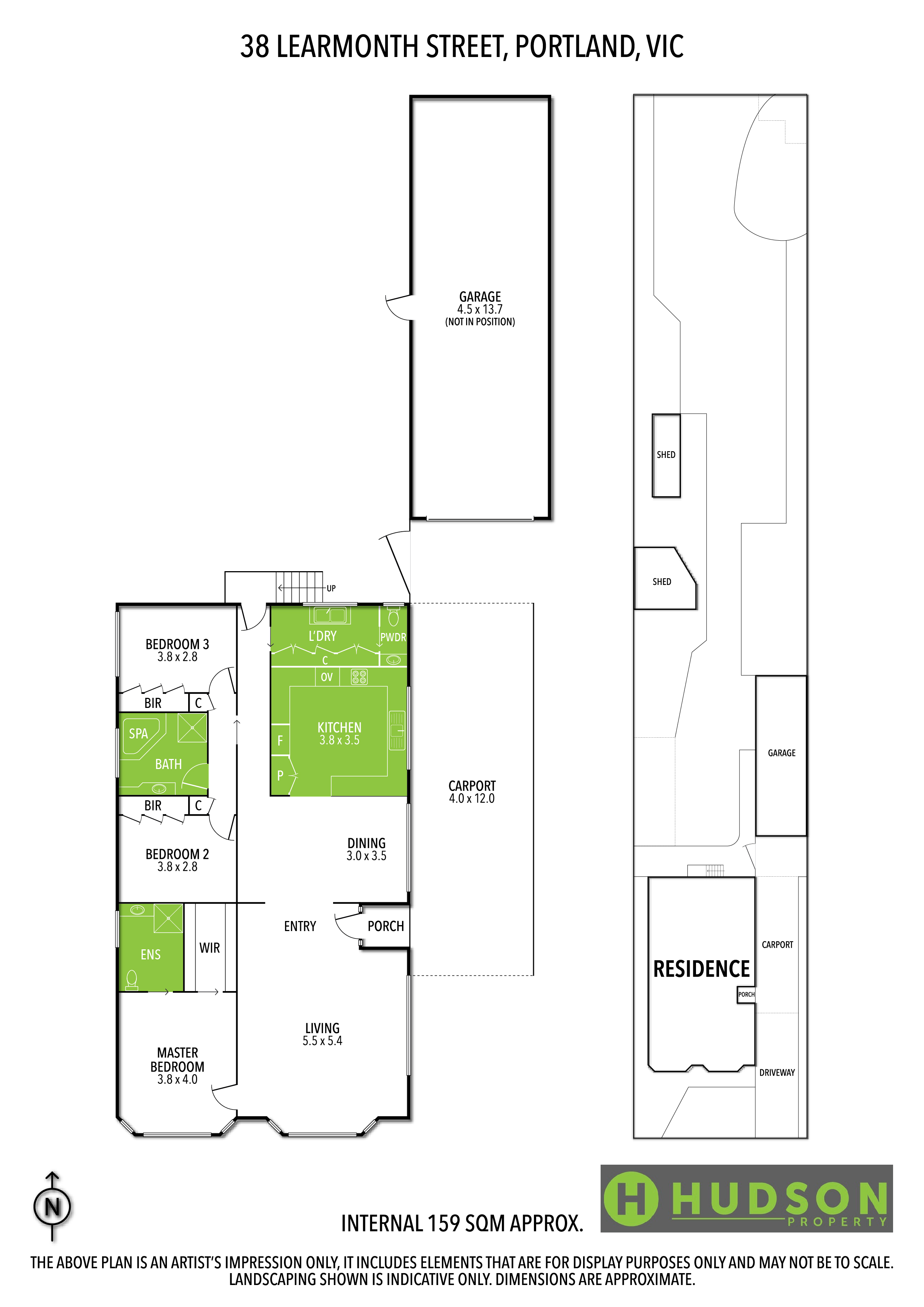
Immaculately presented and set on 2 titles totalling approximately 1,371m², this quality three-bedroom brick home offers far more than first meets the eye. From the street you could be deceived, but, once you step inside and start to explore, you will truly appreciate the scale, space, and lifestyle on offer.
Designed for comfortable family living, the home features an expansive open-plan layout incorporating a large living/family area alongside the kitchen and dining area. Polished floors, feature brick walls and warm timber finishes create a welcoming and character-filled interior.
The kitchen is very spacious with all the benchtop and storage you could need plus a walk in pantry and massive breakfast bar which connects to the dining area. From here you enter the very roomy and sun drenched lounge room complete with bay window.
All three bedrooms are generously sized and include built-in robes, while the master suite is complete with a walk-in robe and ensuite.
And for those would like a little more colour in there lives - and who doesn't - the main bathroom offers a touch of luxury with a corner spa and vanity in red!!
Large windows throughout the home invite an abundance of natural light, enhancing the sense of space throughout this well-proportioned home.
Outdoors is where this property truly shines and opens up the endless possibilities. Along with a 15m x 5m Colorbond shed, you will also find a fantastic outdoor entertaining space - or......your Bar in the backyard! Additional to the 'bar' is permanent caravan which would make the most ideal art studio, office or teenagers retreat.
The additional rear allotment opens up a world of possibilities—whether it’s space for the kids to play, a cricket pitch, or the potential further development/sub-division. (STCA).
Offering space, versatility and exceptional outdoor features, this is a property that must be inspected to be fully appreciated.
NB: Boundary lines are an approximate only.
Heating & Cooling
Outdoor Features
Indoor Features
Mortgage Calculator
$3,078
Estimated monthly repayments based on advertised price of $640000.


