1 / 3 Waiora Court, Point Lonsdale VIC
LOW CARE, EASY LIVING OR HOLIDAY HOME/INVESTMENT - EX DHA IN SEASIDE POINT LONSDALE.
***UNDER OFFER *** When it comes to location, you can't beat this seaside property located in one of Point Lonsdale's quiet streets just a few streets back from the water. This perfectly situated double story home is suitable to a range of buyers including owner occupiers, investors or holiday makers looking for the freedom of a versatile holiday home just a stone throw from the water.
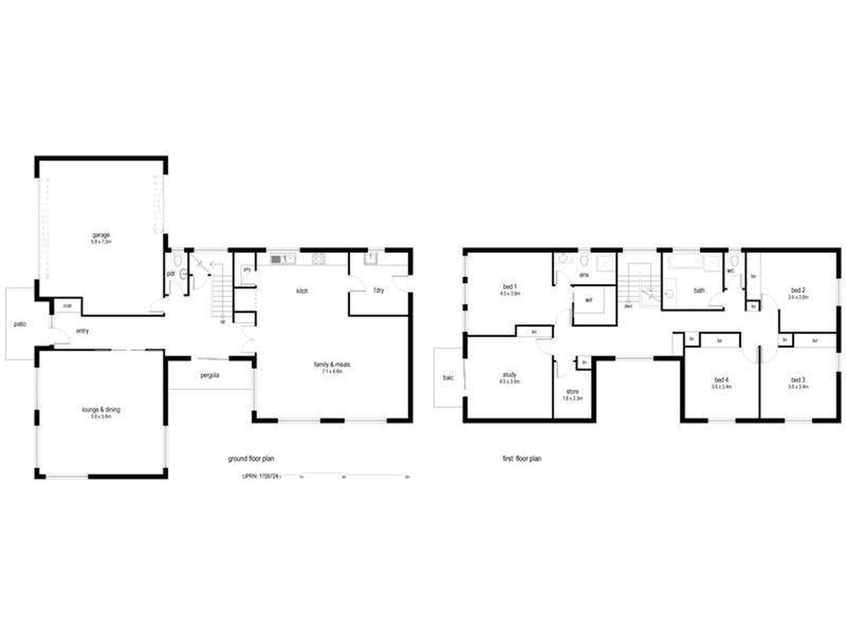
This home offers a family friendly layout complete with five bedrooms all upstairs including master with spacious WIR and ensuite. In addition you'll find a spacious bathroom and store room. Downstairs there's a separate carpeted living room, open plan kitchen, dining and family room opening through sliding doors to the undercover alfresco.
FEATURES INCLUDE:
* 4 Large Bedrooms plus large study or 5th Bedroom with balcony
* Main with Ensuite and WIR
* 2 Bathrooms
* 2 Large Living areas
* Gas ducted central heating
* Ducted Air conditioning
* Store room
* Large Laundry
* Powder room
* DLUG with internal/external access - drive through to rear. Storage for boat or trailer.
* Situated on 423 sqm
* Covered outdoor Alfresco area
* Low maintenance yard.
Centrally located in a quiet street, residents can walk to everything this coastal town offers including - family friendly beaches, cafes and restaurants, shops and parks & public transport. This quality brick home will appeal to permanent home buyers, holiday makers and investors alike.
Act quickly to secure your little paradise. Please contact Sharon Richter of Hudson Property Agents for your inspection on 0407 288028.
*Professional images to follow.
Mortgage Calculator
$3,078
Estimated monthly repayments based on advertised price of $579000.
Property Price
Deposit
Loan Amount
Interest Rate (p.a)
Loan Terms




