Augustine Heights QLD
DHA LEASED UNTIL 2025 - SEVEN YRS GUARANTEED RENT! INVESTOR DELIGHT.
This modern and spacious home was built in 2011 and is perfect for investors looking good long term growth and the security of guaranteed rent from a long term DHA (Defence Housing Australia) lease. With just under seven years remaining on the 12 year lease (plus a 3 yr option) you will have assurance of a guaranteed income and stress free investing regardless of wether the home is tenanted.
DHA LEASE BENEFITS:
* Guaranteed rent paid on time every time regardless of whether the house is tenanted
* Annual independent rent reviews
* Most maintenance paid for by DHA
* Restoration works completed at the end of the lease
* Zero re-letting fees
LEASE FEATURES :
* Gross rent $425 pw - reviewed annually by independent valuers
* Lease restoration works completed by DHA at lease end.
* Located in growth area of Queensland on a lovely street in a quiet neighbourhood.
LEASE DETAILS :
* Leased until Feb 2025
* Option available : 1 x 36 month option
* Right to vary : 1 x up to 12 months reduction or 1 x up to 12 months extension
* All options/extensions are in DHA's favour.
PROPERTY FEATURES:
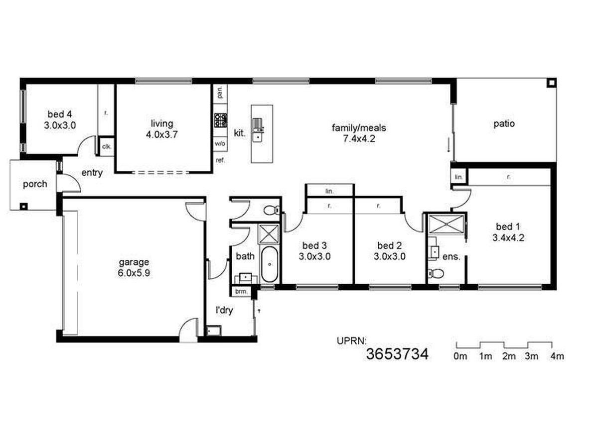
* Brick and Tile home with 4 Bedrooms - main with Ensuite & WIR
* 2 Living areas inc Shared Kitchen/Dining, Family Meals area and Lounge
* DLUG with internal access
* 480 sqm Block
* Outdoor and undercover entertaining/Alfresco area
* Airconditioning
* Outdoor patio overlooking rear yard.
These are just some of the benefits of the DHA lease attached to this property. Enjoy all the benefits of rental guarantee and a no fuss investment property; let DHA do all the hard work for you.
This property is for sale on behalf of a Defence Housing Australia lessor and has a Defence Housing Australia lease in place. Visit dha.gov.au to learn the benefits of investing in Defence Housing Australia property. If you would like to arrange an inspection please contact Sharon Richter of Hudson Property Agents - the Defence Properties specialists
** Photographs in this advertisement were taken whilst previously vacant between defence tenant placements in order to protect current occupants privacy & are to be used as a guide only. All inspections require a minimum notice.
Mortgage Calculator
$3,078
Estimated monthly repayments based on advertised price of $479000.




