Flinders View QLD
DHA LEASED FOUR BEDROOM HOUSE IN FLINDERS VIEW - LEASED UNTIL 2021
If you are searching for a no fuss investment, this property located in Flinders View will suit you perfectly! There is a secure DHA (Defence Housing Australia) lease in place with your rent guaranteed until the end of the lease in June 2021 with a 3 year option.
Currently renting at $420pw.This modern and spacious home is perfect for investors looking for good long term growth and the security of guaranteed rent from a long term DHA (Defence Housing Australia) lease.
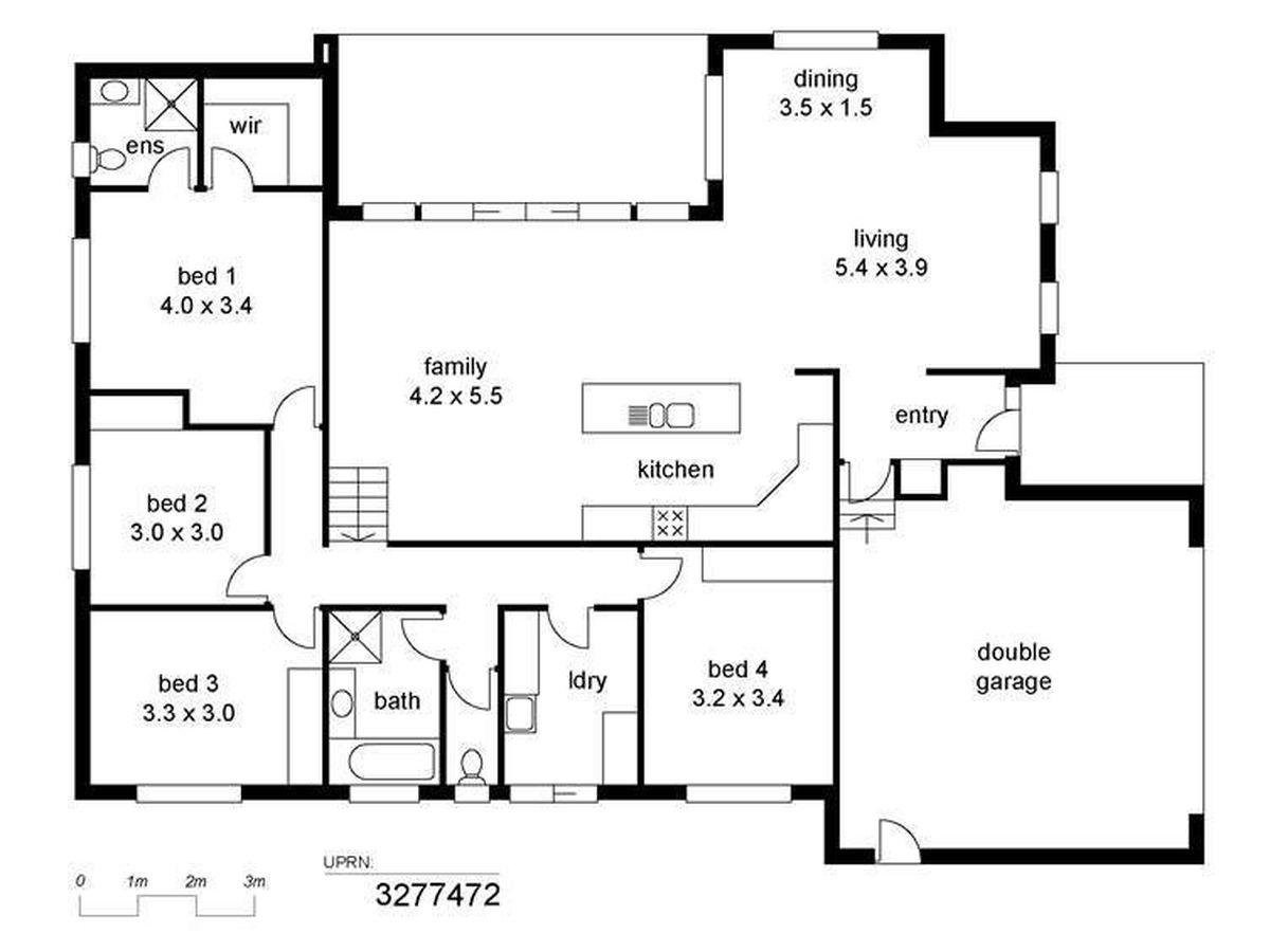
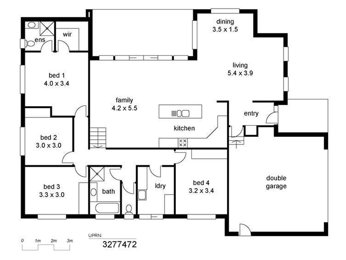
PROPERTY FEATURES:
* Modern lowset brick home
* 4 Bedroom inc Main with Ensuite, WIR and Air Con
* 2 Separate living areas inc Family/Rumpus and Living/Dining
* Air conditioning
* Close to schools and shops
* DLUG
* Outdoor entertaining area
* Generous 834 sqm block
* Great location on quiet street
LEASE DETAILS :
* Leased until 4/06/2021
* Option available : 1 x 36 month option
* Right to vary : 1 x up to 12 months reduction or 1 x up to 12 months extension
* All options/extensions are in DHA's favour.
LEASE FEATURES :
* Gross rent $420 pw - reviewed annually by independent valuers
* Lease restoration works completed by DHA at lease end.
DHA LEASE BENEFITS:
* Guaranteed rent paid on time every time regardless of whether the house is tenanted
* Annual independent rent reviews
* Most maintenance paid for by DHA
* Restoration works completed at the end of the lease
* Zero re-letting fees
These are just some of the benefits of the DHA lease attached to this property. Enjoy all the benefits of rental guarantee and a no fuss investment property; let DHA do all the hard work for you.
This property is for sale on behalf of a Defence Housing Australia lessor and has a Defence Housing Australia lease in place. Visit dha.gov.au to learn the benefits of investing in Defence Housing Australia property. If you would like to arrange an inspection please contact Sharon Richter of Hudson Property Agents - the Defence Properties specialists.
** Photographs in this advertisement were taken whilst previously vacant between defence tenant placements in order to protect current occupants privacy & are to be used as a guide only. All inspections require a minimum notice.
Mortgage Calculator
$3,078
Estimated monthly repayments based on advertised price of $425000.
Property Price
Deposit
Loan Amount
Interest Rate (p.a)
Loan Terms


