1 Hayman Lane, Meridan Plains QLD
Stylishly appointed single level home - less than 1 year old.
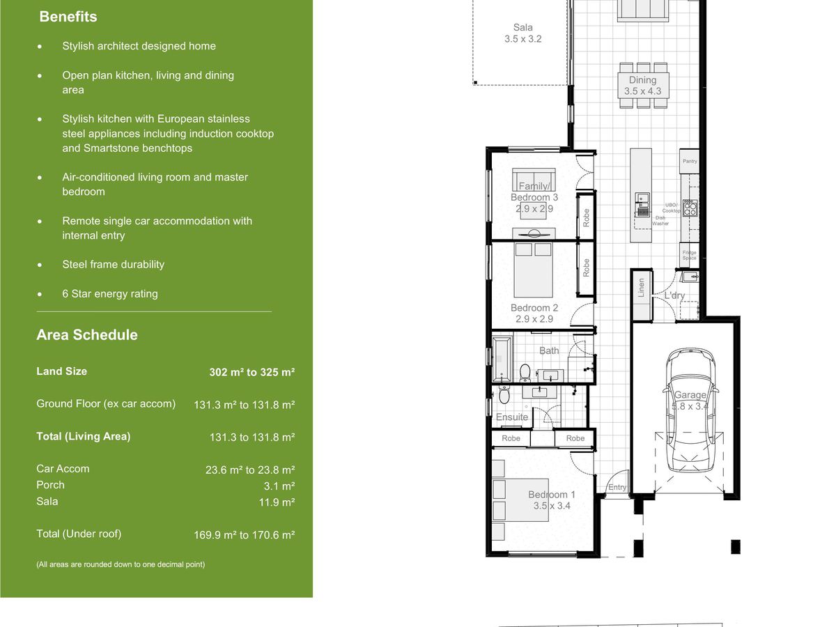
This near new cleverly designed single level home combines low maintenance living and has been thoughtfully designed for comfort and practicality on one level. Everyday living is sure to be a breeze. With an air-conditioned open plan living space extending through to the sala, there’s plenty of opportunity for outdoor entertaining and enjoying coastal breezes from your own private yard. A stylish galley kitchen comes complete with quality inclusions such as European stainless steel appliances featuring an induction cooktop and elegant Smartstone bench tops.
Property features :
* 3 bedrooms all with BIR's and main with ensuite.
* Simplicity of single level living.
* Single lock up garage with internal access of security and privacy to tenants.
* Low maintenance care on a 300sqm block
* Situated in the beautiful Creekwood estate
* Convenient location close to schools, childcare, shops and transport
* 10 minutes to beaches
* 5 minutes to Caloundra CBD
* Close to parks, walkways and kick about areas
NBN NETWORK INSTALLED & READY TO GO
* Pay TV port available
* Electric HWS and appliances
* Low maintenance and convenient lifestyle
* Water efficient property
NOTE - Photos used are indicative only and prospective tenants should assess the property through a personal inspection.
Please call today if you would like to arrange an inspection for this lovely new property.

