Sale VIC Lease 2023 + 3 years
DHA LEASE UNTIL 2023 + 3 YRS. INVESTOR GOLD.
This home is perfect for investors looking for good long term growth and security with approx 5 years still remaining on the 9 year lease (+ a 3 yr option). The DHA (Defence Housing Australia) lease offers the new owners guaranteed income, resulting in stress free investing, regardless of wether the home is tenanted.
PROPERTY FEATURES:
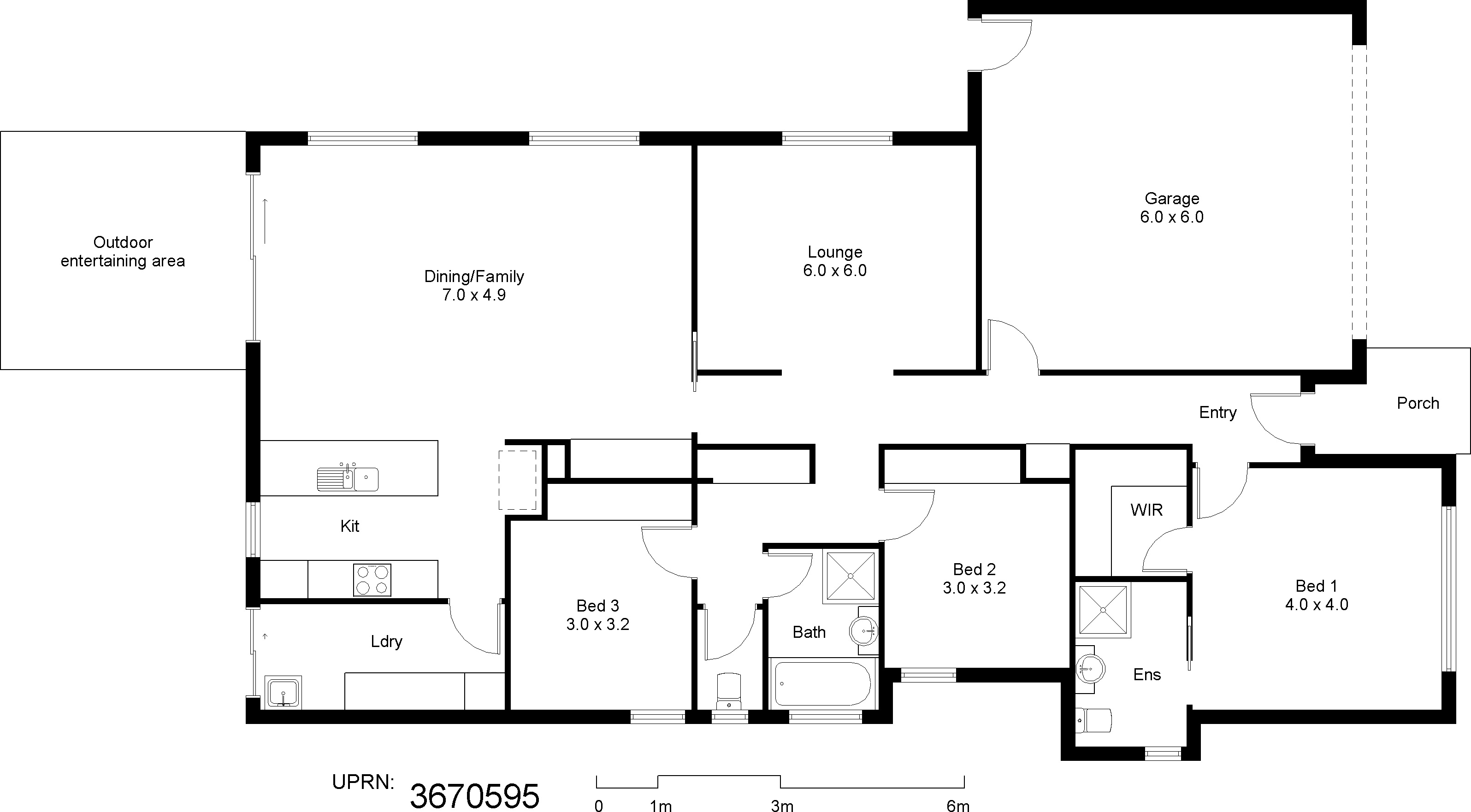
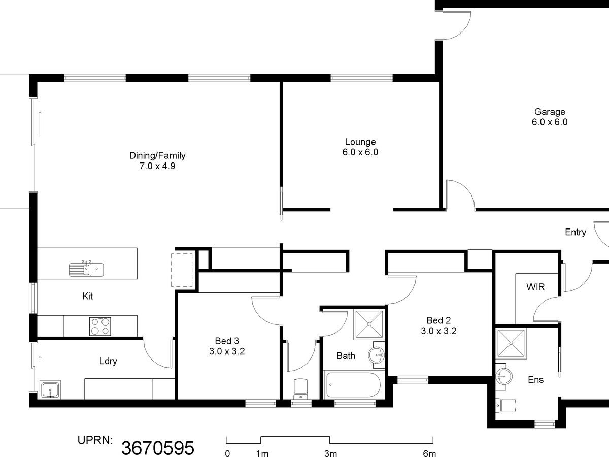
* Modern lowset brick home
* 3 Bedroom inc Main with Ensuite, WIR and Air Con
* 2 Separate living areas inc Family/Rumpus and Living/Dining
* Outdoor entertaining area
* 620 sqm block
* Built approx 2012
LEASE DETAILS :
* Lease edition Edition 6B
* Lease start date 25/09/2014
* Lease end date 24/09/2023
* Lease option 1 x up to 36 months
* Right to vary 1 x up to 12 months Reduction and 1 x up to 12 months Extension
CURRENT RENT : $375PW
RATES :
Council : Approx $2300 pa
Water : Approx $330 pa
DHA LEASE BENEFITS:
* Guaranteed rent paid on time every time regardless of whether the house is tenanted
* Annual independent rent reviews
* Most maintenance paid for by DHA
* The lessor may also be entitled to a lease-end make-good (refer to the DHA Lease Agreement).
* Zero re-letting fees
These are just some of the benefits of the DHA lease attached to this property. Enjoy all the benefits of rental guarantee and a no fuss investment property; let DHA do all the hard work for you.
* Investing with DHA - This property is for sale on behalf of a DHA Lessor and has a DHA Lease Agreement in place. Visit dha.gov.au to learn about the benefits of investing in a DHA property. If you would like to arrange an inspection please contact Sharon Richter of Hudson Property Agents - the Defence Properties specialists.
* In accordance with DHA regulations, we advise that this property will only be available for private inspections and to pre-qualified buyers.
* Photos are supplied under agreement by DHA, and are for illustration purposes only.
Heating & Cooling
Outdoor Features
Indoor Features
Mortgage Calculator
$3,078
Estimated monthly repayments based on advertised price of $375000.
Property Price
Deposit
Loan Amount
Interest Rate (p.a)
Loan Terms

