Tanilba Bay NSW Lease 2026 + 3 years
INVEST NOW & ENJOY GUARANTEED RENT FROM DHA UNTIL 2026 + 3 YR OPTION.
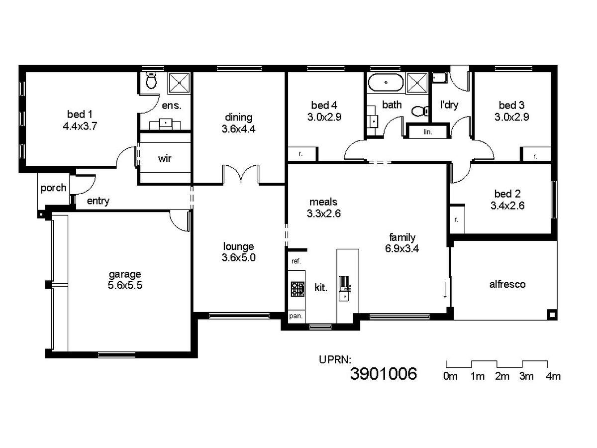
This DHA investment property is situated in peaceful Tanilba Bay a suburb in the popular Port Stephens area. It offers plenty of space both inside and out and includes 4 spacious bedrooms with the master comprising a WIR and ensuite. The kitchen overlooks a large open plan family/meals area and a separate lounge and formal dining area is ideal as a parents retreat. A large, fully fenced, backyard provides plenty of space for the kids to play.
Built approximately 2012, this property is currently under a DHA (Defence Housing Australia) lease until July 2026 (+ 3-year option to extend). With weekly rent at $450pw, assessed annually, it offers the astute buyer a no-fuss, stress-free investment with rental income guaranteed every month by DHA.
PROPERTY FEATURES:
* Low set and low maintenance brick home
* 4 large bedrooms incl. main with ensuite, WIR
* Air conditioning and ceiling fans throughout
* 2 separate living areas incl. family/meals and separate living/dining area
* Tiled living and carpeted bedrooms
* Safety screens throughout
* Outdoor covered patio
* Double lock-up garage with internal entry access
* Built approx. 2012
CURRENT LEASE FEATURES :
* Lease edition: Edition 6b
* Lease start date: 21/07/2014
* Lease end date:20/07/2026
* Lease option: 1 x up to 36 months
* Right to vary: 1 x up to 12 months extension and 1 x up to 12 months reduction
* Note: The option and right to vary is at DHA’s discretion.
CURRENT RENT : $450pw and assessed annually.
DHA LEASE BENEFITS:
* DHA guarantee to pay the rent even if the property is vacant
* DHA Property Care, an all-inclusive service fee, covers a range of property related services.
* The property is cleaned at the end of each tenancy period.
* The lessor may also be entitled to a lease-end make-good (refer to the DHA Lease Agreement).
* A rental floor may apply to the DHA Lease Agreement (applicable to specific lease editions & applies to commencement rent).
These are just some of the benefits of the DHA lease attached to this property. Enjoy all the benefits of rental guarantee and a no fuss investment property; let DHA do all the hard work for you.
* Investing with DHA - This property is for sale on behalf of a DHA Lessor and has a DHA Lease Agreement in place. Visit dha.gov.au to learn about the benefits of investing in a DHA property. If you would like to arrange an inspection please contact Jennifer Andrew of Hudson Property Agents - the Defence Properties specialists.
* In accordance with DHA regulations, we advise that this property will only be available for private inspections and to pre-qualified buyers.
* Photos are supplied under agreement by DHA & not been taken for the purpose of marketing.
Heating & Cooling
Outdoor Features
Indoor Features
Mortgage Calculator
$3,078
Estimated monthly repayments based on advertised price of $550000.





