Bushland Beach QLD Lease 2022 + 3 years
INVEST IN TOWNSVILLE, ENTRY LEVEL INVESTING WITH DHA LEASE.
This home is perfect for investors looking for good long term growth and security with a lease until Dec 2022 plus a 3 yr option which would take it through until 2025! The DHA (Defence Housing Australia) lease offers the new owners guaranteed income, resulting in stress free investing, regardless of wether the home is tenanted.
With Townsville experiencing some of the highest rental yields in the country, vacancy rates continuing to come down and property experts reporting Townsville is on the way back from it’s previous downturn, now is the perfect time to consider investing in the region.
PROPERTY FEATURES:
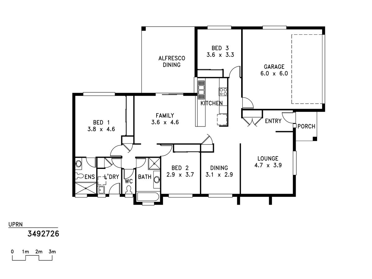
* Modern lowset brick home
* 3 Bedroom inc Main with Ensuite, WIR and Air Con
* 2 Separate living areas inc Lounge and Living/Dining
* Outdoor entertaining area
* 614 sqm block
* Built approx 2010
LEASE DETAILS :
* Lease edition Edition 6B
* Lease start date 16/12/2010
* Lease end date 15/12/2022
* Lease option 1 x up to 36 months
* Right to vary 1 x up to 12 months Reduction and 1 x up to 12 months Extension
CURRENT RENT : $380pw and reviewed annually each December.
DHA LEASE BENEFITS:
* Guaranteed rent paid on time every time regardless of whether the house is tenanted
* Annual independent rent reviews
* Most non structural maintenance paid for by DHA
* The lessor may also be entitled to a lease-end make-good (refer to the DHA Lease Agreement).
* Zero re-letting fees
These are just some of the benefits of the DHA lease attached to this property. Enjoy all the benefits of rental guarantee and a no fuss investment property; let DHA do all the hard work for you.
* Investing with DHA - This property is for sale on behalf of a DHA Lessor and has a DHA Lease Agreement in place. Visit dha.gov.au to learn about the benefits of investing in a DHA property. If you would like to arrange an inspection please contact Sharon Richter of Hudson Property Agents.
**In accordance with DHA regulations, we advise that this property will only be available for private inspections and to pre-qualified buyers.
Mortgage Calculator
$3,078
Estimated monthly repayments based on advertised price of $320000.
Property Price
Deposit
Loan Amount
Interest Rate (p.a)
Loan Terms

