Boorooma NSW
4 BEDROOM HOME- READY TO MOVE INTO IN JANUARY!
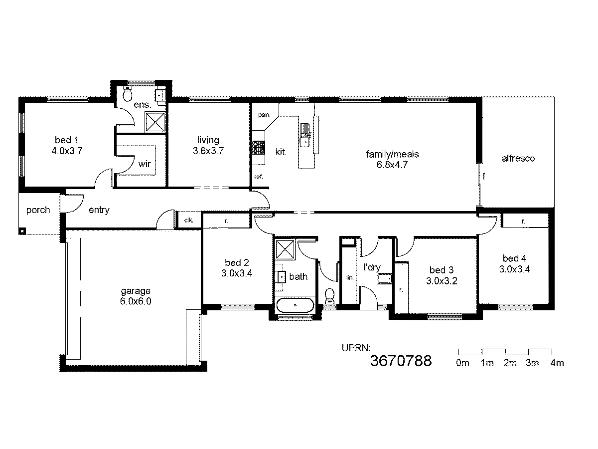
This welcoming 4, bedroom family home is located in the rapidly growing suburb of Boorooma, Wagga Wagga; north of the Murrumbidgee River and just 3 kms south of Charles Sturt University. This suburb is undergoing a transition from a rural residential area to a more urban one and this appealing property will undoubtedly tick all the boxes for great family living.
The property is managed and maintained by DHA who are now handing back the property to the current owner. The property handover is due to occur in January 2021 when it will be vacant and ready for your immediate enjoyment. The house comes complete with a separate living room, modern kitchen and family area, two bathrooms, double garage, fully fenced, child-friendly, backyard with an undercover entertaining area and an easy care established garden.
Property Details
4 bedrooms, main bedroom with extensive walk in robe and ensuite
Additional 3 good size bedrooms all with built in robes
An undercover porch to the entry leads seamlessly to a separate formal living room and the house can also be accessed internally via the double garage
Double garage has internal access and rear drive-through access to rear
At the heart of the home is a good size open plan kitchen with a seamless flow to the family/meals area and then continuing on to the undercover outdoor alfresco area
Separate formal living room
spacious laundry with large linen press and direct access to the yard
air conditioning
What’s Nearby?
(distances are approximate)
Riverina Anglican College – 2.3 km (3 min)
Charles Sturt University- 3.3km (5 min)
Wagga CBD- 6.5 km (7 min)
This property is for sale on behalf of a Defence Housing Australia lessor and has a Defence Housing Australia lease in place. Visit dha.gov.au to learn the benefits of investing in Defence Housing Australia property
Lease edition Edition 6B
Lease start date 13/06/2012
Lease end date 12/06/2021 (proposed new end date 21/1/2021)
Current rent: $450 pw
The lessor may also be entitled to a lease-end make-good (refer to the DHA Lease Agreement)
To find out more about this home, or if you would like an inspection, please contact Tracee Stuart at Hudson Property.
Mortgage Calculator
$3,078
Estimated monthly repayments based on advertised price of $465000.




