1338 Princes Highway, Heywood VIC
Country Life Without The Sacrifice
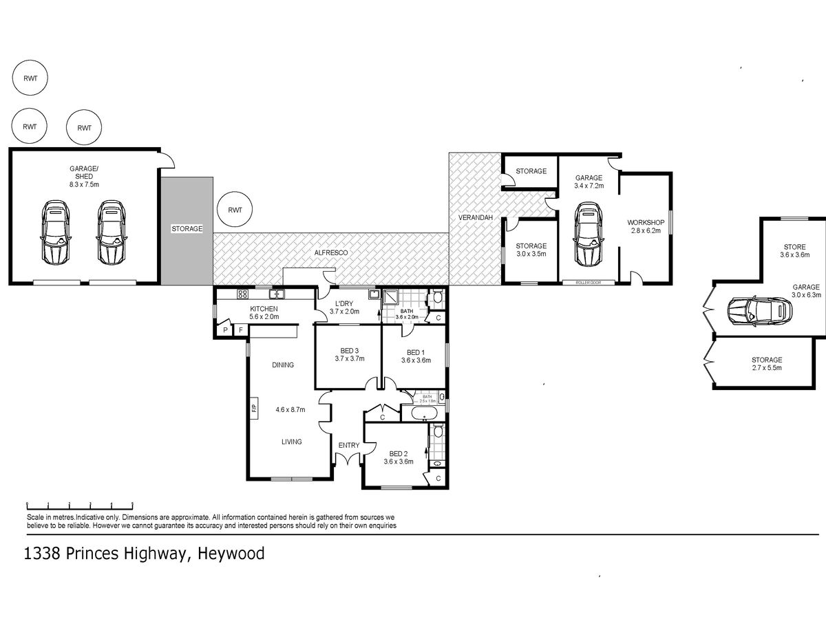
Located on the Portland side of Heywood is this picturesque property with a 3 bedroom home on approximately 1 acre that has plenty to offer and without nearby neighbours. The property features 3 large carpeted bedrooms, huge lounge/dining area and great kitchen utilizing multi shelved pantry and spacious laundry.
The master bedroom has direct access to a shower and toilet both with grab rails and personal bidet sprayer. The second bedroom contains a reverse cycle air conditioner, allowing for a comfortable room for sleeping during the summer and winter months and also includes an en-suite toilet also with personal bidet sprayer and vanity. The third bedroom is ideally situated within easy access of the heated second bathroom containing bath, shower, and vanity. The main living area has polished floorboards throughout. Heating and cooling isn’t a problem through the living areas as the lounge/dining rooms contain a large wood heater, gas heater, and reverse cycle unit, all independently able to keep the home comfortable during the varied seasons. Vinyl flooring throughout the kitchen compliments the easy to use layout and décor. Wheelchair friendly access are features via front and rear entries.
Outside the home features an as new 8m x 7.5m powered shed and two remote controlled 3.5m clearance electric doors allowing convenient entries for the caravan and boat. There is a secondary attached lean-to for storage/trailer/etc. parking. The other powered garage with remote controlled electric roller door completes the security for another car. Several workshops/storage sheds/areas all with power are situated throughout the large property.
Water is plentiful with 4 rainwater tanks totalling 50,000 litres, and ample water via a bore. All tanks and bore are plumbed into the home. Never run out of water.
Numerous fruit and native trees dot the landscape adding to the overall attraction of country life and comfortable living.
Heating & Cooling
Outdoor Features
Indoor Features
Eco Friendly Features
Mortgage Calculator
$3,078
Estimated monthly repayments based on advertised price of $325000.
Property Price
Deposit
Loan Amount
Interest Rate (p.a)
Loan Terms

