Rasmussen QLD
DEFENCE HOUSING (DHA) LEASE UNTIL 2024 + 3 YR OPTION.
INVESTORS : This modern home offers the astute investor a great opportunity for good capital growth. Currently leased to Defence Housing (DHA) on a long term lease which expires in 2024 with a 3 yr option that could take it through until 2027!
The DHA (Defence Housing Australia) lease offers the new owners guaranteed income, resulting in stress free investing, regardless of whether the home is tenanted. An investment property leased to DHA is ideal for investors from anywhere in the country, superannuation funds, and is a perfect investment for those starting their property portfolio and looking for a safe and secure option to get started.
With Townsville experiencing some of the highest rental yields in the country, vacancy rates continuing to come down and property experts reporting Townsville is on the way back from its previous downturn, now is the perfect time to consider investing in to the region.
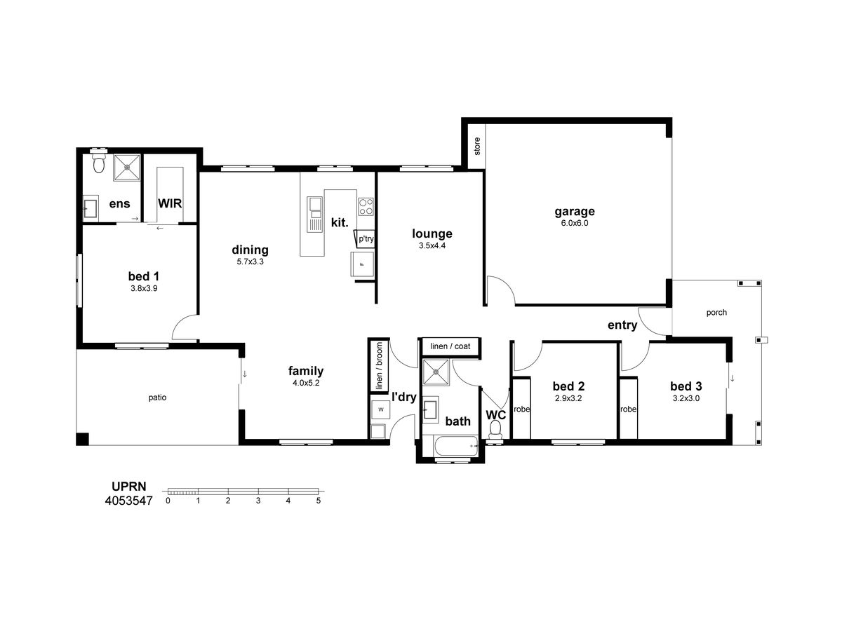
FEATURES:
* 3 bedrooms inc Master bedroom with air-conditioning, walk-in robe and en suite
* Two large living areas
* Open plan dining, kitchen and family air-conditioned flows out to the undercover entertaining area through glass sliding doors.
* Air conditioning and fans throughout
* Separate laundry
* Double Lock up auto garage with storage and internal entry to the home
* Large undercover outdoor entertaining area perfect for alfresco living and dining
* Safety screens throughout
* Smoke alarms and electrical safety switch
* 583SQM of land
* Built 2015
LEASE FEATURES
* Lease edition : 6C
* Lease start date : 02/11/2015
* Lease end date : 01/11/2024
* Lease option : 1 x up to 36 months
* Right to vary : 1 x up to 12 months Reduction and 1 x up to 12 months Extension
* CURRENT RENT for 2021 : $350pw and guaranteed not to drop below $350pw for the life of the lease.
DHA LEASE BENEFITS:
* Guaranteed rent paid on time every time regardless of whether the house is tenanted
* Annual independent rent reviews
* Most non-structural maintenance paid for by DHA
* The lessor may also be entitled to a lease-end make-good (refer to the DHA Lease Agreement).
* Zero re-letting fees
RATES :
Council & Water combined approx $2900pa after DHA rebate usage.
These are just some of the benefits of the DHA lease attached to this property. Enjoy all the benefits of rental guarantee and a no-fuss investment property; let DHA do all the hard work for you.
*** Investing with DHA - This property is for sale on behalf of a DHA Lessor and has a DHA Lease Agreement in place. Visit dha.gov.au to learn about the benefits of investing in a DHA property. If you would like to arrange an inspection please contact Sharon Richter of Hudson Property Agents. In accordance with DHA regulations, we advise that this property will only be available for private inspections and to pre-qualified buyers.
Information provided above has been obtained from various sources from which we believe to be accurate, however, Hudson Property Agents accept no liability for any errors or omissions, including but not limited to a Floorpan, build date, land size, floor plans and size, property condition. Interested parties should make their own enquiries and conduct their own due diligence in addition to obtaining legal advice from their appointed solicitor or conveyancer.
Heating & Cooling
Outdoor Features
Indoor Features
Mortgage Calculator
$3,078
Estimated monthly repayments based on advertised price of $349000.
Property Price
Deposit
Loan Amount
Interest Rate (p.a)
Loan Terms
