Bohle Plains QLD
LONG TERM LEASE TO DHA UNTIL 2024 PLUS 3 YR OPTION. IMPRESSIVE YIELD OF 6.11%.
INVESTORS : This property represents the perfect opportunity for an astute investor. With security and “peace of mind" from a long lease to Defence Housing Australia (DHA) and guaranteed rental income even if the property is vacant, along with other extensive benefits of the DHA Property Care Services, you can’t go wrong. With an impressive yield of 6.11% banks will love you.
Located in a quiet Crescent in Kalynda Chase development in Bohle Plains. and in close proximity to Townsville Golf Course, Willows Shopping Centre, Cannon Park and multiple private and public school options. This is the perfect home for an investor to move in at lease end, rent out or sell after DHA's make good is completed.
With Townsville experiencing some of the highest rental yields in the country, vacancy rates continuing to come down and property experts reporting Townsville is on the way back from its previous downturn, now is the perfect time to consider investing into the region.
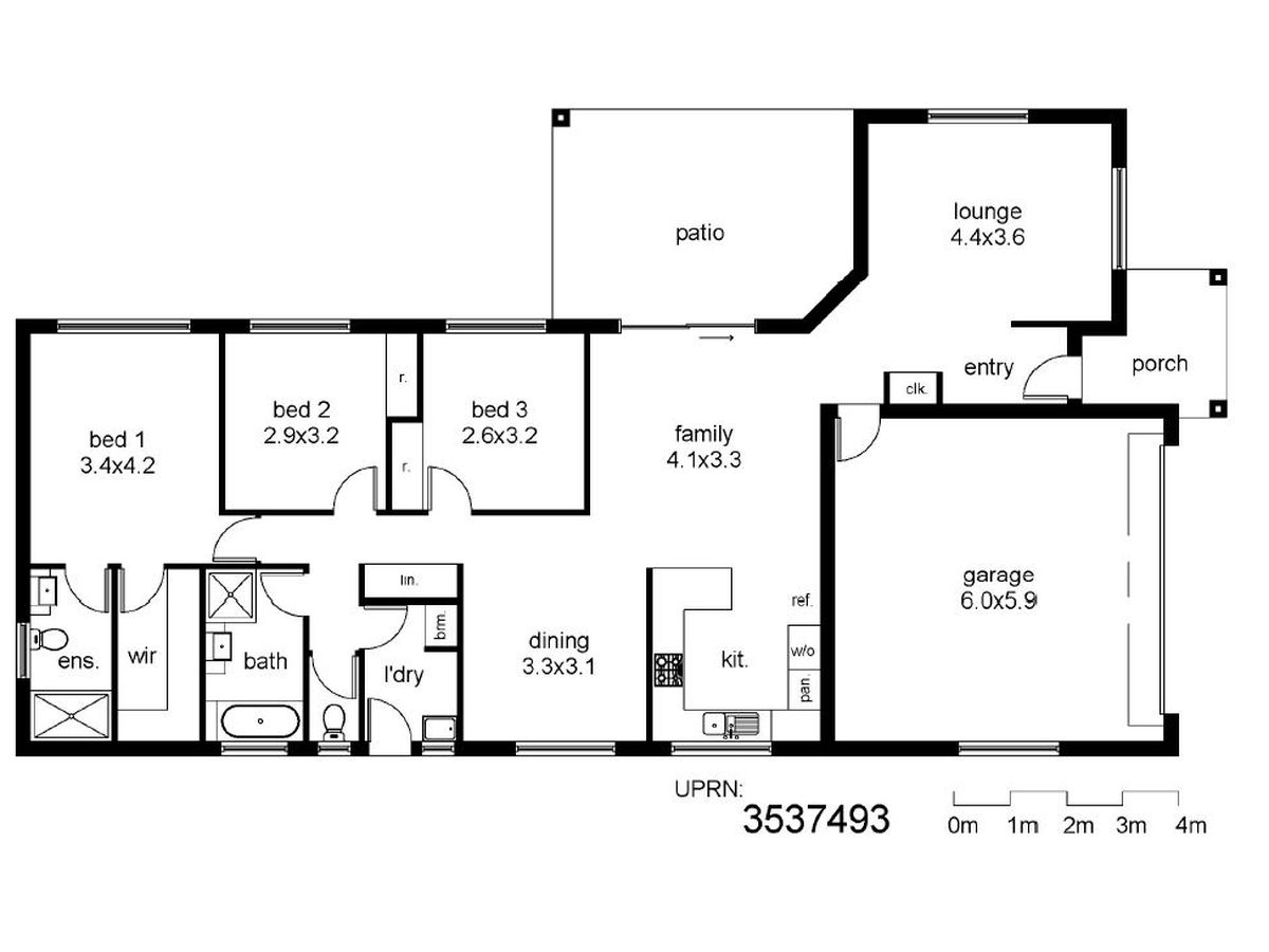
PROPERTY FEATURES:
* 3 good size bedrooms inc Main with ensuite & AC
* 2 Separate living areas
* Air conditioning throughout
* Outdoor entertaining area
* Double lock up garage with internal access
* Security Screens throughout
* 536sqm block
* Built In 2012
LEASE DETAILS :
* Lease edition Lease Edition 6B
* Lease start date 19/03/2012
* Lease end date 18/03/2024
* Lease option 1 x up to 36 months
* Right to vary 1 x up to 12 months reduction and 1 x up to 12 months extension
CURRENT GROSS RENT : $435pw and reviewed annually each December, guaranteed to not drop below $435pw for the life of the lease.
DHA LEASE BENEFITS:
* Guaranteed rent paid on time every time regardless of whether the house is tenanted
* Annual independent rent reviews
* Most non-structural maintenance paid for by DHA
* The lessor may also be entitled to a lease-end make-good (refer to the DHA Lease Agreement).
* Zero re-letting fees
These are just some of the benefits of the DHA lease attached to this property. Enjoy all the benefits of rental guarantee and a no fuss investment property; let DHA do all the hard work for you.
* Investing with DHA - This property is for sale on behalf of a DHA Lessor and has a DHA Lease Agreement in place. Visit dha.gov.au to learn about the benefits of investing in a DHA property. If you would like to arrange an inspection please contact Sharon Richter of Hudson Property Agents.
**In accordance with DHA regulations, we advise that this property will only be available for private inspections and to pre-qualified buyers.
Heating & Cooling
Outdoor Features
Indoor Features
Mortgage Calculator
$3,078
Estimated monthly repayments based on advertised price of $365000.
Property Price
Deposit
Loan Amount
Interest Rate (p.a)
Loan Terms

