Burdell QLD
INVEST NOW - LEASED TO DEFENCE HOUSING.
INVESTORS : If you're looking for a safe and secure property in a market that produces some of the best yielding investments in the country then you can't go wrong with this home. Built in 2014 and currently tenanted on a long term lease to Defence Housing Australia (DHA) until August 2026 plus an additional option of three years that would take it through until 2029. The 2023 rent is currently $480pw (representing a yield of 5.56%) and is reviewed annually by an independent professional valuer, and adjusted on the 1st January every year.
A DHA (Defence Housing Australia) lease offers the new owners amazing inclusions such as guaranteed rental income, a comprehensive property care/maintenance package, & annual independent professional rental valuations and adjustments, all of which are designed to offer buyers a stress free experience. Ideal for those investors located anywhere in the country, purchasing as an individual or through self managed super funds, and perfect for those starting their property portfolio and looking for a safe and secure option.
At lease end the home is repainted at DHA's expense before being handed back for you to move in, rent out privately or sell OR you can also choose to discuss DHA's requirements for the home on a longer term basis with the potential to lock in a new lease. You're also free to onsell to another investor at any time during the lease.
Burdell is a northern suburb of the City of Townsville with approx 9000 people. The home is located within walking distance of a private school and daycare and a 2 minute drive to shopping and facilities.
LEASE DETAILS :
* Lease edition 6B
* Lease start date 25/08/2014
* Lease end date 24/08/2026
* Lease option 1 x 3 year option
* Right to vary 1 x up to 12 months Reduction and 1 x up to 12 months Extension
* All options/extensions are in DHA's FAVOUR.
CURRENT GROSS RENT for 2023: $480pw and adjusted each December according to an independent professional valuation using comparable rentals.
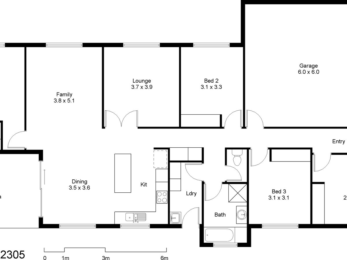
PROPERTY FEATURES:
* Modern lowset brick home
* 4 Large Bedrooms inc Master Bedroom inc with Ensuite, Built in Robe and Air Conditioning
* 2 Separate living areas inc Kitchen/Dining, Family and Living
* Air conditioning throughout
* Ceiling fans throughout
* Easy care tiles throughout
* Double lock up garage with internal entry
* Security Screens
* Outdoor undercover patio/entertaining area
* 502sqm block
* Built approx 2014
* Combined Council & Water Rates - Approx $2,240 half-yearly
DHA LEASE BENEFITS:
* Guaranteed rent paid on time every time regardless of whether the house is tenanted
* Annual independent rent reviews
* Most maintenance paid for by DHA
* The lessor may also be entitled to a lease-end make-good (refer to the DHA Lease Agreement).
* Zero re-letting fees
** A note for Owner Occupiers -This property is sold with a DHA (Defence Housing Australia) lease in place which offers significant benefits to the investor however can’t be occupied by the owner/s until the lease ends **
***Investing with DHA - This property is for sale on behalf of a DHA Lessor and has a DHA Lease Agreement in place. Visit dha.gov.au to learn about the benefits of investing in a DHA property. If you would like to arrange an inspection please contact Sharon Richter of Hudson Property Agents. In accordance with DHA regulations, we advise that this property will only be available for private inspections and must be co-ordinated by the agent with the tenants.
Information provided above has been obtained from various sources which we believe to be accurate, however, Hudson Property Agents accept no liability for any errors or omissions, including but not limited to a Floorpan, lease dates, build date, land size, floor plans and size, and property condition. Interested parties should make their own enquiries and conduct their own due diligence in addition to obtaining legal advice from their appointed solicitor or conveyancer.
Heating & Cooling
Outdoor Features
Indoor Features
Mortgage Calculator
$3,078
Estimated monthly repayments based on advertised price of $450000.
Property Price
Deposit
Loan Amount
Interest Rate (p.a)
Loan Terms




