Brinsmead QLD
LEASED TO DHA. RENT $580PW.
INVESTORS : This lovely home located in Brinsmead, Cairns offers plenty of opportunity for the future growth of the region to the savvy investor. Perfect for investors looking for good long term growth and security with a lease to DHA (Defence Housing Australia) until 2025. A DHA lease offers the new owners guaranteed rent and at the end of the lease, this will make a perfect family home to live in, sell or rent out privately.
An investment property leased to DHA is ideal for investors from anywhere in the country, superannuation funds, and is a perfect stress free investment, for those starting their property portfolio and looking for a safe and secure option to get started.
CURRENT RENT Rent for 2023 : $580PW and adjusted each December according to an independent professional valuation
LEASE DETAILS :
* Lease edition 6
* Lease start 12/11/2016
* Lease end 11/11/2025
* Lease option 1 x up to 36 months option
* Right to vary 1 x up to 12 months
* Note: The option and right to vary is at DHA’s discretion.
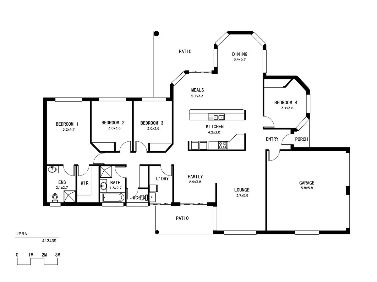
FEATURES:
* 4 bedrooms
* Master bedroom, air-conditioned, walk-in robe and spacious ensuite
* Large bedrooms with ceiling fans and built in robes
* Two large living areas including huge Living/Dining space off the kitchen/formal dining area.
* Kitchen casual dining flows out to the undercover entertaining area through glass sliding doors.
* Air conditioning and fans throughout
* Separate laundry
* Double auto garage
* Large undercover outdoor entertaining area perfect for alfresco living and dining
* Safety screens throughout
* Smoke alarms and electrical safety switch
* Generous 700sqm block of land with side access for vehicle, boat or caravan
* Built approx 1999
*COUNCIL & WATER RATES: Approx $1,611 Paid Half-yearly
DHA LEASE BENEFITS:
* Guaranteed rent paid on time every time regardless of whether the house is tenanted
* Annual independent rent reviews
* Most maintenance paid for by DHA
* The lessor may also be entitled to a lease-end make-good (refer to the DHA Lease Agreement).
* Zero re-letting fees
** A note for Owner Occupiers -This property is sold with a DHA (Defence Housing Australia) lease in place which offers significant benefits to the investor however can’t be occupied by the owner/s until the lease ends **
***Investing with DHA - This property is for sale on behalf of a DHA Lessor and has a DHA Lease Agreement in place. Visit dha.gov.au to learn about the benefits of investing in a DHA property. If you would like to arrange an inspection please contact Sharon Richter of Hudson Property Agents. In accordance with DHA regulations, we advise that this property will only be available for private inspections and must be co-ordinated by the agent with the tenants.
Information provided above has been obtained from various sources which we believe to be accurate, however, Hudson Property Agents accept no liability for any errors or omissions, including but not limited to a Floorpan, lease dates, build date, land size, floor plans and size, and property condition. Interested parties should make their own enquiries and conduct their own due diligence in addition to obtaining legal advice from their appointed solicitor or conveyancer.
Heating & Cooling
Outdoor Features
Indoor Features
Mortgage Calculator
$3,078
Estimated monthly repayments based on advertised price of $580000.






