Mcdowall QLD Lease 2024 + 3 years
BIG BRISBANE TOWNHOUSE LEASED UNTIL 2024 - 15KM TO CBD
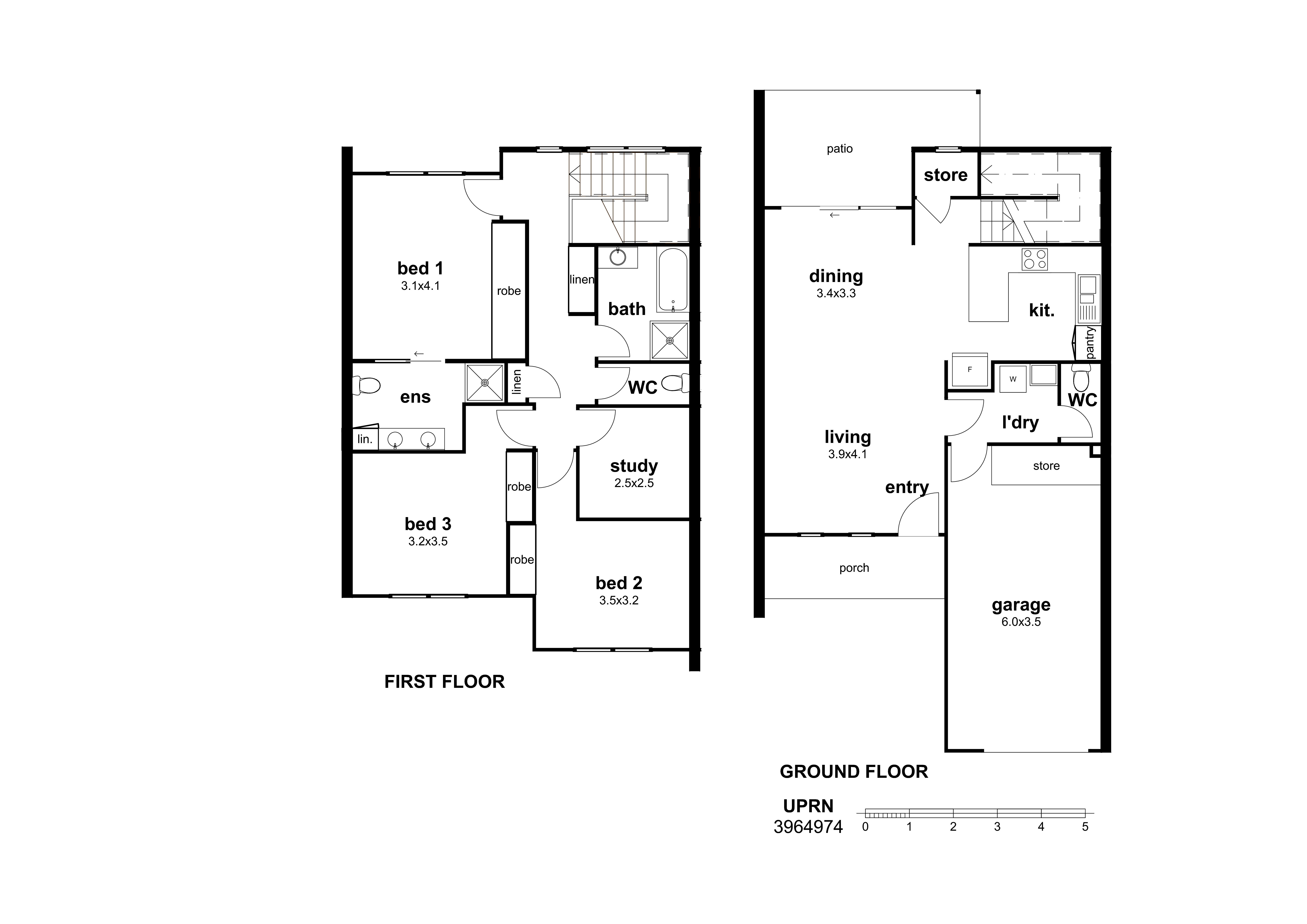
Built in 2015 this modern townhome offers investors the opportunity to enter the Brisbane market with a assurance of guaranteed rent from DHA (Defence Housing Australia) and a long lease until 29th June 2024. Being only four years old also mean theres are still some tax depreciation benefits for most investors. Featuring 3 spacious bedrooms + separate study or multi purpose room, over 2 levels with an open plan kitchen which flows through sliding glass doors to the undercover outdoor entertainment area and yard. Located in a quiet complex with access to all the important amenities including McDowall State School, local shops and cafes, and Westfield Chermside within close proximity.
DHA LEASE DETAILS :
* Lease start date: 30/06/2015
* Lease end date : 29/06/2024
* Lease option: 1 x up to 36 months
* Right to vary: 1 x up to 12 months Reduction and 1 x up to 12 months Extension
* All options/extensions are in DHA's favour.
* Current Gross rent for 2021 $480pw and reviewed annually each December.
DHA LEASE BENEFITS:
* Guaranteed rent paid on time every time regardless of whether the property is tenanted.
* Annual independent rent reviews
* Most maintenance paid for by DHA
* The lessor may also be entitled to a lease-end make-good including new paint and carpet(refer to the DHA Lease Agreement).
* Zero re-letting fees
These are just some of the benefits of the DHA lease attached to this property. Enjoy all the benefits of rental guarantee and a no fuss investment property; let DHA do all the hard work for you.
Currently rates are approx $1850pa and Body Corporate is $2100 pa.
* Investing with DHA - This property is for sale on behalf of a DHA Lessor and has a DHA Lease Agreement in place. Visit dha.gov.au to learn about the benefits of investing in a DHA property. If you would like to arrange an inspection please contact Sharon Richter of Hudson Property Agents - the Defence Properties specialists.
* In accordance with DHA regulations, we advise that this property will only be available for private inspections and to pre-qualified buyers
Heating & Cooling
Outdoor Features
Indoor Features
Mortgage Calculator
$3,078
Estimated monthly repayments based on advertised price of $485000.




