Raceview QLD Lease 2022
ENTRY LEVEL SECURE DHA INVESTMENT LEASED UNTIL AUGUST 2022.
This home in Raceview is perfect for investors looking for good long term growth and security with a DHA (Defence Housing Australia) lease until August 2022. This offers the new owners guaranteed income, resulting in stress free investing.
Rent is paid regardless of whether the home is tenanted.
Positioned in the popular Ipswich suburb of Raceview, this house is in close proximity to local shops, the university, Ipswich CBD, Shopping Centres and Tavern. There is also easy access to the Highway, Springfield Orion shopping centre and the RAAF Base.
PROPERTY FEATURES:
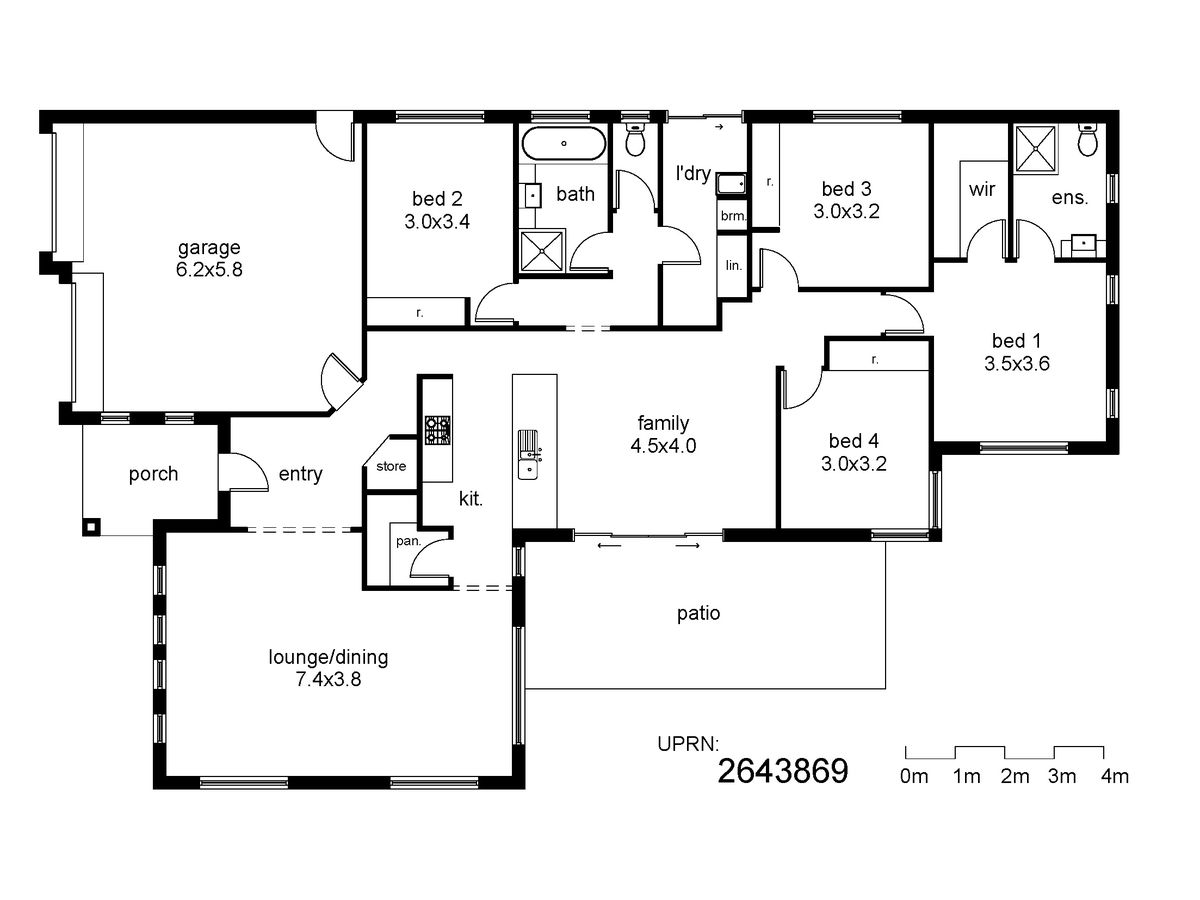
* Modern low-set home
* 4 Bedrooms inc Main with Ensuite, WIR and Air Con
* 2 living areas inc Family, dining and Separate Lounge
* Double Lock up garage with secure internal and rear yard access
* Outdoor entertaining area
* Security Screens throughout
* Modern kitchen with stainless appliances and ample storage
* Dining area opens out to an outdoor patio through double glass sliders
* 600 sqm block
* Built approx 2007
CURRENT GROSS RENT : $375pw
LEASE DETAILS :
* Lease edition Edition 5B
* Lease start date : 17/8/2007
* Lease end date :16/8/2022
* Lease option: Used
* Right to vary 1 x up to 12 months Reduction
* Note: The option and right to vary is at DHA’s discretion.
DHA LEASE BENEFITS:
* Guaranteed rent paid on time every time regardless of whether the house is tenanted
* Annual independent rent reviews
* Most non structural maintenance paid for by DHA
* The lessor may also be entitled to a lease-end make-good (refer to the DHA Lease Agreement).
* Zero re-letting fees
These are just some of the benefits of the DHA lease attached to this property. Enjoy all the benefits of rental guarantee and a no fuss investment property; let DHA do all the hard work for you.
* Investing with DHA - This DHA leased property is available for immediate sale on behalf of a DHA Lessor and has a DHA Lease Agreement in place. Visit dha.gov.au to learn about the benefits of investing in a DHA property. If you would like to arrange an inspection please contact Sharon Richter of Hudson Property Agents - the Defence Properties specialists.
* In accordance with DHA regulations, we advise that this property address is not able to advertised publicly and the property will only be available for private inspections.
* Photos are supplied under agreement by DHA, and are for illustration purposes only.
Heating & Cooling
Outdoor Features
Indoor Features
Mortgage Calculator
$3,078
Estimated monthly repayments based on advertised price of $359000.
Property Price
Deposit
Loan Amount
Interest Rate (p.a)
Loan Terms

