Douglas QLD Lease 2023 + 3 years
LARGE HOME ON 650SQM - LEASED TO DHA UNTIL 2023+ 3YR OPTION. CLOSE TO JAMES COOK UNI.
This lovely home offers plenty of opportunity for the future growth of the region to the savvY investor. WIth five bedrooms or four bedroom plus large study and located in Douglas within walking distance to all major public facilities, minutes from quality schools, Townsville CBD, James Cook University and Townsville Hospital. Investors can reap the benefits of the secure long term DHA (Defence Housing Australia) lease until November 2023 plus 1 x 3 yr option which could take it through until November 2026.
An investment property leased to DHA is ideal for investors from anywhere in the country, superannuation funds, and is the perfect stress free investment, for those starting their property portfolio and looking for a safe and secure option to get started.
With Townsville experiencing some of the highest rental yields in the country, vacancy rates continuing to come down and property experts reporting Townsville is on the way back from its previous downturn, now is the perfect time to consider investing in to the region.
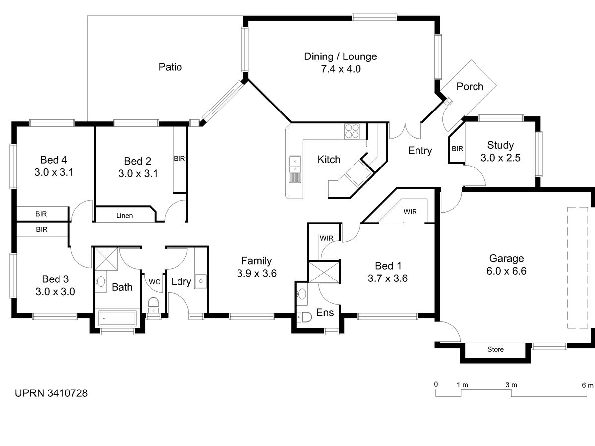
FEATURES:
* 5 bedrooms or 4 bedrooms plus study / 2 Bathrooms and Double Lock up garage
* Master bedroom, air-conditioned, 2 X walk-in robes and spacious ensuite
* Two large living areas including huge Living/Dining space and causal family room off the kitchen/casual dining area.
* Kitchen causal dining flows out to the undercover entertaining area through glass sliding doors.
* Air conditioning and fans throughout
* Separate laundry
* Double auto garage
* Large undercover outdoor entertaining area perfect for alfresco living and dining
* Safety screens throughout
* Smoke alarms and electrical safety switch
* 650SQM of land
LEASE DETAILS :
* Lease edition: Edition 6
* Lease start date: 12/11/2017
* Lease end date: 11/11/2023
* Lease option: 1 x up to 36 months
* Right to vary: 1 x up to 12 months Reduction and 1 x up to 12 months Extension
* Note: The option and right to vary is at DHA’s discretion.
* CURRENT RENT Rent for 2021 : $440PW and assessed annually each December.
DHA LEASE BENEFITS:
* Guaranteed rent paid on time every time regardless of whether the house is tenanted
* Annual independent rent reviews
* Most non structural maintenance paid for by DHA
* The lessor may also be entitled to a lease-end make-good (refer to the DHA Lease Agreement).
* Zero re-letting fees
These are just some of the benefits of the DHA lease attached to this property. Enjoy all the benefits of rental guarantee and a no fuss investment property; let DHA do all the hard work for you.
* Investing with DHA - This property is for sale on behalf of a DHA Lessor and has a DHA Lease Agreement in place. Visit dha.gov.au to learn about the benefits of investing in a DHA property. If you would like to arrange an inspection please contact Sharon Richter of Hudson Property Agents. In accordance with DHA regulations, we advise that this property will only be available for private inspections and to pre-qualified buyers.
Information provided above has been obtained from various sources from which we believe to be accurate, however, Hudson Property Agents accept no liability for any errors or omissions, including but not limited to a Floorpan, build date, land size, floor plans and size, property condition. Interested parties should make their own enquiries and conduct their own due diligence in addition to obtaining legal advice from their appointed solicitor or conveyancer.
Heating & Cooling
Outdoor Features
Indoor Features
Mortgage Calculator
$3,078
Estimated monthly repayments based on advertised price of $449000.
Property Price
Deposit
Loan Amount
Interest Rate (p.a)
Loan Terms




