Eatons Hill QLD Lease 2023 + 3 years
INVESTOR GOLD - LEASED UNTIL 2023 + 3 YR OPTION. CURRENT RENTAL INCOME $575PW.
INVESTORS : With the Brisbane property market recording record growth and predictions that this trend is set to continue for some time, now is the time to lock down your investment in the state. This beautiful four-bedroom home is located in leafy Eatons Hills in a quiet, family friendly neighbourhood. Situated close to numerous local schools, shops and public transport and offering all the convenience residents require for comfortable living.
Investors will love the security of the long term lease in place with DHA (Defence Housing Australia). Currently leased until until 2023 with an additional 3 yr option which would take it through to 2026!
A DHA (Defence Housing Australia) lease offers the new owners guaranteed rental income, resulting in stress free investing, regardless of whether the home is tenanted. Ideal for investors from anywhere in the country, superannuation funds, and perfect for those starting their property portfolio and looking for a safe and secure option to get started.
LEASE DETAILS
* Lease edition 6
* Lease start date 07/07/2017
* Lease end date 06/07/2023
* Lease option 1 x up to 36 months
* Right to vary 1 x up to 12 months Reduction and 1 x up to 12 months Extension
CURRENT RENT for 2021 : $575PW
FEATURES :
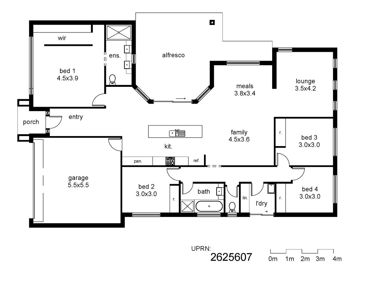
* 4 bedrooms, inc master with WIR, AC & Ensuite.
* Ensuite bathroom with double vanity Main shower and separate bath
* Open plan family, dining and kitchen with sliding glass doors to an outdoor undercover area. Separate lounge.
* Ceiling fans throughout with Aircon to master, main living and kitchen/dining
* Security grills to windows and doors
* Double lock up garage with remote control entry and internal access to the home and rear yard
* 700 SQM block with fully fenced rear yard.
* 20km to Brisbane CBD
This investment equals "peace of mind" from a long lease, guaranteed rental income paid monthly in advance and other extensive DHA Property Care Services.
DHA LEASE BENEFITS:
* Guaranteed rent paid on time every time regardless of whether the house is tenanted
* Annual independent rent reviews
* Most nonstructural maintenance paid for by DHA
* The lessor may also be entitled to a lease-end make-good (refer to the DHA Lease Agreement).
* Zero re-letting fees.
RATES :
Council approx : $526 per quarter
Water approx : $489 per quarter less usage costs
If you'd like to know more about this property or would like to submit an offer please contact Sharon or Viv by clicking on the contact Agent button or calling anytime. We'd love to discuss your property needs. Hudson Property - "Property done properly".
** Investing with DHA - This property is for sale on behalf of a DHA Lessor and has a DHA Lease Agreement in place. Visit dha.gov.au to learn about the benefits of investing in a DHA property. If you would like to arrange an inspection please contact Sharon Richter of Hudson Property Agents.
Heating & Cooling
Outdoor Features
Indoor Features
Mortgage Calculator
$3,078
Estimated monthly repayments based on advertised price of $639000.







