Burdell QLD
INVESTOR GOLD. BETTER THAN MOST - LEASED TO DHA UNTIL 2026 + 3 YR OPTION.
INVESTORS : Available to a savvy investor is this 2016 built large, modern 4 bedroom home leased by DHA (Defence Housing Australia) until 2026 with an additional 3 yr option which could take it through until 2029! You will receive guaranteed rent providing an ongoing income stream into the long term, resulting in stress-free investing, regardless of whether the home is tenanted. Ideal for investors from anywhere in the country, great for superannuation funds, or for those starting their property portfolio and looking for a safe and secure option to get started.
Burdell is a northern suburb of the City of Townsville with approx 9000 people. The home is located within walking distance to a private school and daycare and a 2 minute drive to shopping and facilities.
With record low interest rates and Townsville experiencing some of the highest rental yields in the country, vacancy rates continuing to come down and property experts reporting Townsville is on the way back from its previous downturn, now is the perfect time to consider investing into the region.
LEASE DETAILS :
* Lease edition Edition 6B
* Lease start date 24/04/2014
* Lease end date 23/04/2026
* Lease option 1 x up to 36 months
* Right to vary 1 x up to 12 months
* NOTE : All options/extensions are in DHA's favour.
CURRENT RENT for 2022 : $500pw
PROPERTY FEATURES:
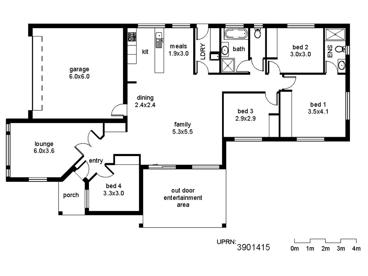
* Large Brick and Tile family home.
* 4 Spacious bedrooms inc master with Aircon and Ensuite.
* Two living areas including separate lounge at the front of the home.
* Modern kitchen boasts stainless steel cooking appliances, sleek tiles & ample storage and bench space.
* Air conditioned living areas.
* Tiled family & meals area with double sliding doors opening to outdoor undercover alfresco dining area.
* Large Double lock up garage with storage and internal access
* Fully security screened
* Spacious 717 sqm flat block.
* Built approx 2013
*Council and Water Rates - Approx $1987 Half-yearly
DHA LEASE BENEFITS:
* Guaranteed rent paid on time every time regardless of whether the house is occupied.
* Annual independent rent reviews.
* Zero re-letting fees for the length of the lease.
* DHA Property Care, an all-inclusive service fee, covers a range of property related services.
* At the end of each tenancy period, the property is professionally cleaned.
* The lessor may also be entitled to a lease-end make-good (refer to the DHA Lease Agreement).
* A rental floor may apply to the DHA Lease Agreement (applicable to specific lease editions and applies to commencement rent).
These are just some of the benefits of the DHA lease attached to this property. Enjoy all the benefits of rental guarantee and a no fuss investment property; let DHA do all the hard work for you.
* * Investing with DHA - This property is for sale on behalf of a DHA Lessor and has a DHA Lease Agreement in place. Visit dha.gov.au to learn about the benefits of investing in a DHA property. If you would like to arrange an inspection please contact Sharon Richter of Hudson Property Agents. In accordance with DHA regulations, we advise that this property will only be available for private inspections and to pre-qualified buyers.
Information provided above has been obtained from various sources from which we believe to be accurate, however, Hudson Property Agents accept no liability for any errors or omissions, including but not limited to a Floorpan, build date, land size, floor plans and size, property condition. Interested parties should make their own enquiries and conduct their own due diligence in addition to obtaining legal advice from their appointed solicitor or conveyancer.
Heating & Cooling
Outdoor Features
Indoor Features
Mortgage Calculator
$3,078
Estimated monthly repayments based on advertised price of $499000.





